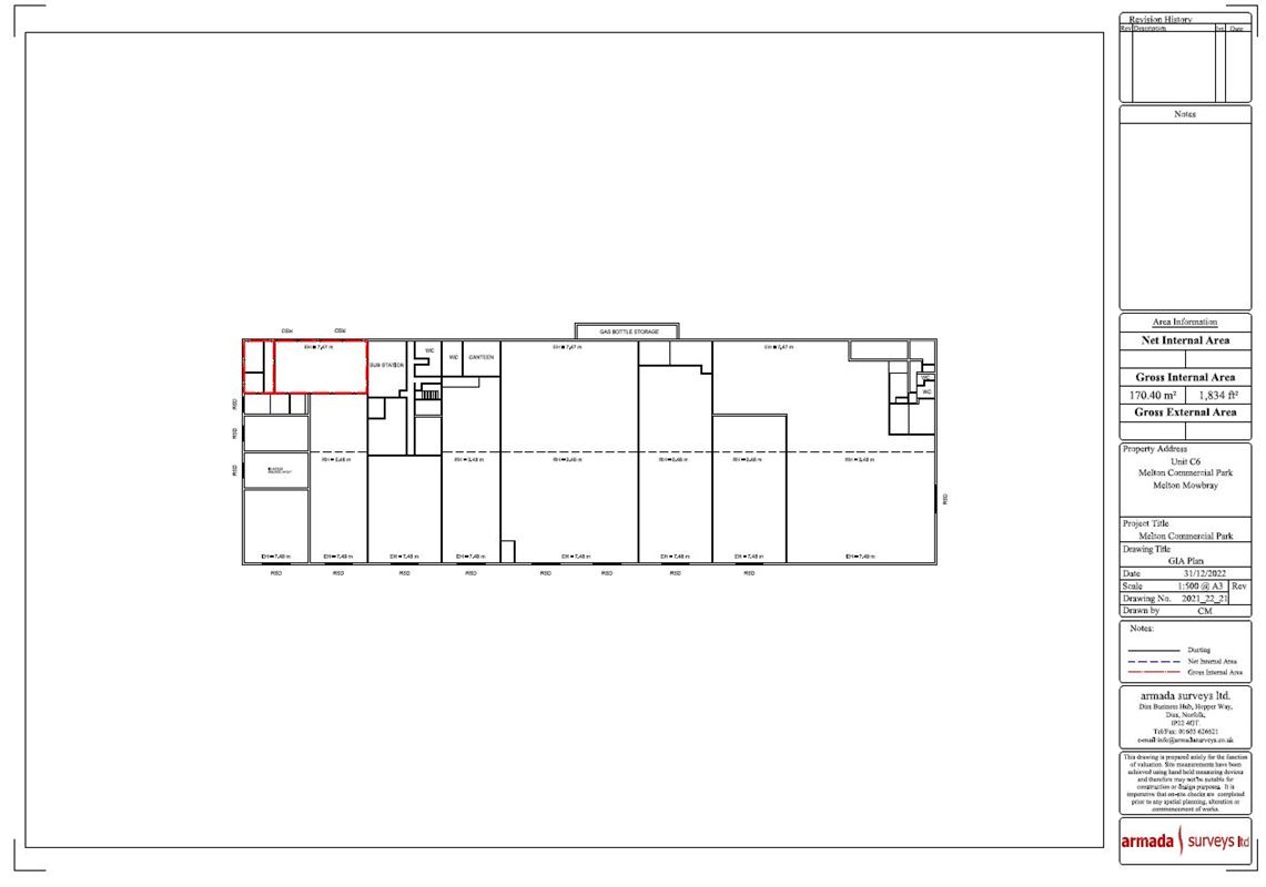
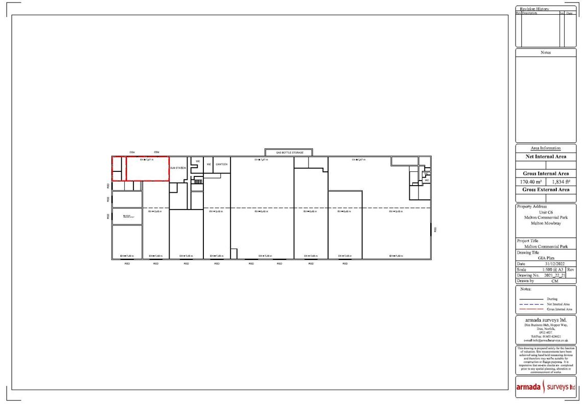
Unit C6, Melton Commercial Park LE14

Unit C6, Melton Commercial Park LE14

1,834 sq ft (170.4 sq m)

Melton Mowbray 2 miles
Jubilee Avenue 1.4 miles
Police Station 1.6 miles

Industrial accommodation with integrated office and mezzanine.

Key Features

  • End-Terrace Industrial Unit
  • Deidacted Forecourt Loading
  • Dedicated Parking
  • E Rated

Location

Melton Mowbray is a town in Leicestershire, 19 miles (31km) northeast of Leicester, and 20 miles (32 km)
southeast of Nottingham.
Melton Commercial Park is located 2 miles north-east of Melton Mowbray. The business park has direct
road access via St Bartholomew's Way onto the A606, which links to the A46 trunk road, between the M1 at
J21a and Lincoln, with connecting routes to Leicester, Nottingham, Grantham and Newark.

Terms & Conditions

A new lease is available direct from
the Landlord on terms to be
agreed.

Key property details
Tenure
Leasehold Application
Size
1,834 Sq Ft 170.4 Sq M
Type
General Industrial and Storage & Distribution
Carter Jonas reference
20018331
Property agent
James Butcher

Suggested properties

Here are a few properties you might like, but within 2 extra miles of your current search

Thinking of selling?

Find out what your property is worth