Residential Development Site At Manley Farm, Halberton EX16

Residential Development Site At Manley Farm, Halberton EX16

Freehold | 1.9 acres (0.773 hectares)

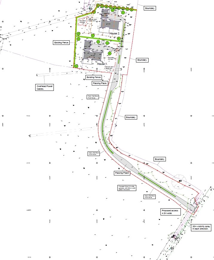
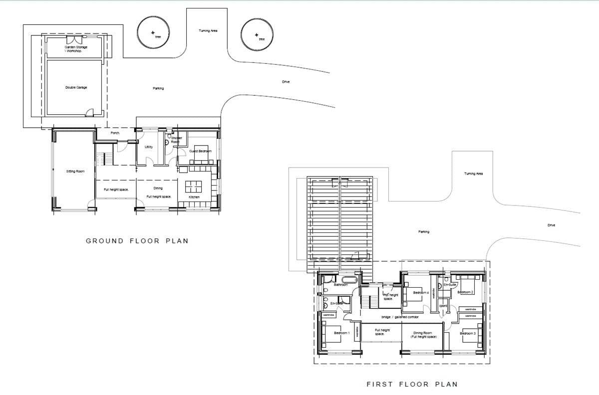
The residential development site at Manley Farm comprises a site with consent for the removal of a modern farm building and replacement with two no. detached substantial four-bedroom dwellings and associated garages.

Residential Development Site at Manley Farm, Halberton, Tiverton, Devon, EX16 4NJ

A residential development site for two detached dwellings.

The residential development site at Manley Farm comprises a site with consent for the removal of a modern farm building and replacement with two no. substantial detached four-bedroom dwellings and associated garages, together with the creation of a new access. In all extending to 1.91 acres. For sale by private treaty as a whole.

The property is conveniently located close to the village of Halberton and the town of Tiverton. Tiverton provides an excellent range of shopping, banking, recreational, healthcare and educational facilities. The North Devon Link Road (A361) is within easy reach and provides access to the M5 motorway at Junction 27 with the regional centres of Exeter and Taunton within easy reach, as well as Tiverton Parkway mainline railway station.


Buildings
The property comprises a concrete yard and modern timber framed and clad agricultural building for demolition. There is a new access to be established to the site running to the south. The proposed dwellings will provide substantial accommodation with a proposed gross internal area totalling 265sqm and a garage/store with a gross internal area of 51sqm.


Method of sale
The property is offered for sale by private treaty with a guide price of £395,000.


Tenure & Possession
The freehold of the property is offered for sale with vacant possession available upon completion.


Planning
Planning permission was granted by Mid Devon District Council for the erection of two dwellings and garages following the demolition of the agricultural building to include the formation of a vehicular access and associated works, on 12th September 2024. The planning application reference number is 24/01026/FULL.


Services
New service connections will need to be established by the purchaser to service the dwellings. We believe that there is mains water and electricity available in the vicinity of the site, to the south. The relevant easements will be granted over the vendor’s retained land to facilitate connections as required. Potential purchasers should make their own enquiries of South West Water and National Grid (Western Power Distribution) in relation to the availability and capacity of mains service connections to the site.


Health and Safety
Potential purchasers should take particular care when inspecting the site as it currently forms part of a working farmstead. Potential purchasers should be mindful of machinery and livestock movements at the time of inspection as well as uneven and potentially slippery ground surfaces.


Local Authorities
Mid Devon District Council


Viewings
Viewings are strictly by appointment through the selling agents, Carter Jonas, on 01823 428590.


Directions
Heading from Halberton towards Tiverton, turn left onto Manley Lane shortly after the entrance to Hartnoll Business Park. Follow this road for about one mile, crossing the bridge over the canal, and turn left shortly after, onto Manley Farm driveway. Follow this drive, passing the residential properties on the left-hand side, and following the driveway around to the right. Continue up, passing the gravel entrance to Manley Farmhouse on the left, and park at the end of the driveway, by the farm buildings. Go through the gate to the south of the entrance and the site will be found across the paddock to the south east of the traditional barns.


What Three Words
Site entrance – case.basic.character

Key property details
Tenure
Freehold
Size of land
1.9 acres (0.773 hectares)
Carter Jonas reference
TAU240116
Thinking of selling?

Find out what your property is worth