Development Site At Hartrow Farm, Lydeard St. Lawrence TA4

Development Site At Hartrow Farm, Lydeard St. Lawrence TA4

Modern farm buildings with planning permission for replacement with five detached dwellings in an elevated position with outstanding views of the Quantock Hills, Exmoor and across the Bristol Channel. Best and final offers due by midday on Friday 17 December.

LOCATION
The site is situated in an elevated position between the Exmoor National Park and the Quantock Hills close to the villages of Stogumber and Lydeard St Lawrence, about 12 miles to the west of the Somerset County Town of Taunton and about 7 miles to the south of Williton with access from the B3224 a short distance from Elworthy Cross.

BUILDINGS
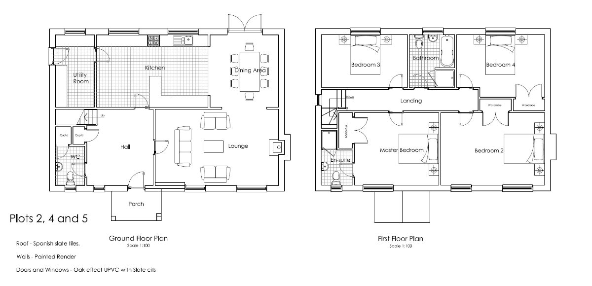
The site comprises a range of modern farm buildings surrounded by arable and pasture land and extends in all to about one and a half acres. The site will include ownership of the existing access drive from above the existing field access gates above the bungalow. No rights of access will be reserved for the vendor over this part of the access drive for their retained land. The vendor has confirmed that they would be prepared to clear the farm buildings from the site for the purchaser. Permission has been granted for five no. detached four bedroom dwellings each of about 200sqm.

METHOD OF SALE
The property is offered for sale by private treaty with a guide price of £850,000.

TENURE & POSSESSION
The freehold of the property is offered for sale with vacant possession available upon completion.

PLANNING
Permission was granted in September 2021 by Somerset West and Taunton for the demolition of buildings with the erection of five no. detached dwellings with widening and improvement of access arrangements, landscaping and associated works under application reference 3/12/20/003.

COMMUNITY INFRASTRUCTURE LEVY (CIL)
There is no CIL due in West Somerset.

PHOSPHATES
Under the current information/guidance, we believe the site is outside of the area impacted by the ‘phosphates issue’ on the Somerset Levels since it appears to fall within a different water catchment area.

SERVICES
Mains electricity and water supplies are available within the vicinity of the site within adjoining land owned by the vendor. The vendor will grant the necessary rights for the purchaser to make their own connections to these services. The required rights will also be granted for the purchaser to install a drainage field within the vendor’s adjoining land.

HEALTH & SAFETY
The site currently comprises a working farmstead. Potential purchasers are therefore required to take particular care when inspecting the property, bearing in mind especially the risk of sudden movements from machinery, vehicles and livestock which may be present and operating at the time of inspection, especially in and around the farm buildings. Potential purchasers are requested to wear supportive footwear for viewings and are advised to be conscious of potentially uneven and slippery ground surfaces.

LOCAL AUTHORITY
Somerset West and Taunton
www.somersetwestandtaunton.gov.uk

VIEWING
Viewings are by appointment only through the joint selling agents, Carter Jonas and Greenslade Taylor Hunt.

DIRECTIONS
Following the A358 from Taunton to Minehead, after the roundabout signed right for Bishops Lydeard, continue on the A358 for about one mile until turning left onto the B3224, signed Lydeard St Lawrence etc. Follow this road for about four miles, continuing towards Elworthy Cross. Pass the right turning signed 'Willett' and the next right turning signed 'Higher Vexford and Lower Vexford'. The entrance to the site Is the next on the left. Turn left into the site passing the bungalow and associated outbuildings and continue up the farm track to the farm buildings.

Key property details
Carter Jonas reference
TAU210107
Thinking of selling?

Find out what your property is worth