Land At Marcham, Oxfordshire OX13
A prime residential development opportunity on the edge of the sought-after village of Marcham in the Vale of White Horse District, extending to approximately 8.55 acres (3.46 hectares) and benefitting from a resolution to grant outline planning permission for up to 90 dwell
LOCATION
The property is situated to the immediate south of the A415 which in turn provides access onto the A34(T) linking the M4 and M40 motorways 1 mile east.
Marcham is an attractive Oxfordshire village located approximately 2.5 miles west of the centre of Abingdon-on-Thames and 8 miles southwest of Oxford.
Abingdon-on-Thames is a historic and thriving market town with an extensive range of services and facilities including shops, restaurants, banks, sports centre, retail parks and supermarkets.
Village facilities in Marcham include a Church of England Primary School, Marcham Centre (a village hall, MUGA and playing fields opened in June 2020), Hyde Farm Nurseries (garden centre), The Crown public house, a village shop and post office.
The village benefits from a nearby train station at Didcot Parkway (seven miles) providing regular and direct services into London Paddington in approximately 37 minutes.
Alternatively, Oxford Parkway train station (13 miles) provides direct services to London Marylebone in approximately 56 minutes.
THE PROPERTY
The property extends to approximately 8.55 acres (3.46 hectares) of agricultural grazing land and benefits from an attractive edge of village setting. The property is laid out across a single enclosure and is bound on all sides by mature hedgerows. Access is taken off the A415 and the topography is broadly level.
The property is bound to the north by the A415, to the west by existing residential development off Willow Farm (built out by Pye Homes and now fully sold) and to the east and south by further agricultural land.
PLANNING
Vale of White Horse District Council resolved to approve outline planning permission, subject to completion of a Section 106 Agreement, at Planning Committee on 20th October 2021 for:
“Outline planning permission for residential development of up to 90 dwellings (Use Class C3) including means of access into the site (not internal roads) and associated highway works, with all other matters (relating to appearance, landscaping, scale and layout) reserved”
(Application Reference: P20/V1388/O)
All matters are reserved except for means of access to the development.
The planning permission will be governed by a Section 106 Agreement. The Agreement will provide for the delivery of 35% affordable housing.
Please note that the Section 106 Agreement is currently being negotiated but it is the intention of the vendors and the promoter to make this available prior to the bid deadline once in an engrossed form.
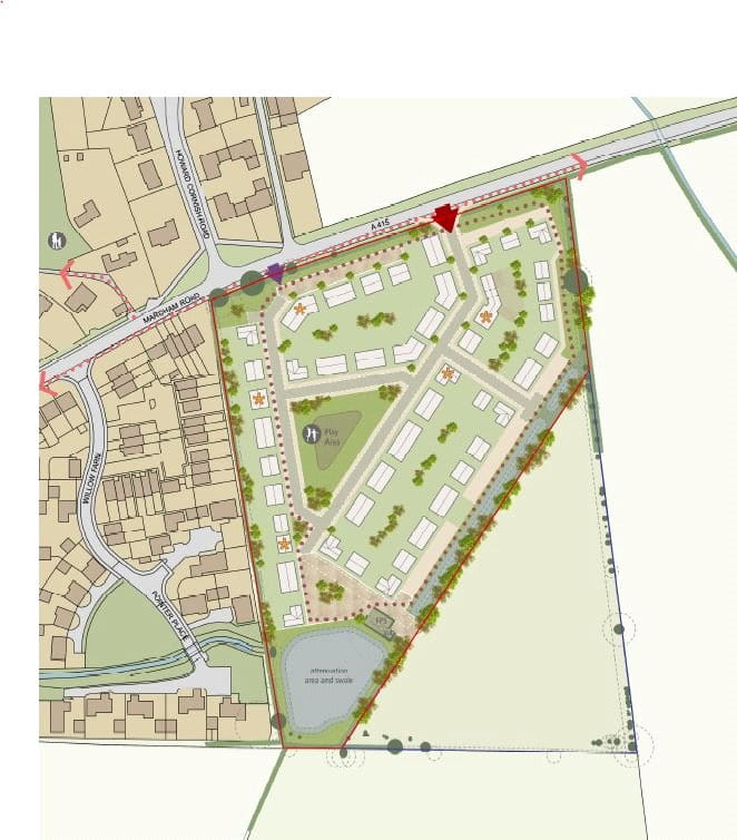
THE PROPOSED DEVELOPMENT
The development proposed is in outline only and was submitted to show the approximate location of buildings, routes and open spaces, together with the scale of development proposed.
The outline planning application provides for:
• Up to 90 residential dwellings (35% affordable)
• A new access off A415 and separate pedestrian / cycle access point
• Provision of Local Area of Play (LEAP)
• Provision of public open space
• New tree planting along the south eastern boundary which is safeguarded for the proposed Marcham bypass
• SUDS and ecological area
• Off site highway works
FURTHER INFORMATION
A Data Room has been prepared to accompany these particulars and includes all relevant planning, technical and legal information, as well as bidding guidance. This includes a utilities appraisal and an intrusive ground investigation report.
Prospective purchasers should note that the vendors will expect them to have obtained and carefully considered the contents of the Data Room prior to submitting their offer.
This is available at: www.marcham-development.com
METHOD OF SALE
The opportunity is offered for sale freehold with vacant possession, by way of informal tender and with unconditional offers sought.
The vendors will impose a restriction on title, benefitting their retained land to the southeast, restricting development to that permitted within the outline planning permission.
The vendors will reserve all rights and easements necessary over the property from the A415 for the current and future use of their retained land (edge blue on the Site Plan) at all times and for all purposes for access and service media for the benefit of their retained land.
Offers should be received by email in accordance with the Bidding Guidance contained on the Data Room and received by 12 Noon on Thursday 3rd March 2022, marked “Marcham Tender”.
VAT
VAT will be chargeable on the sale price.
VIEWING
The property may be viewed from the highway. Parties wishing to walk the site should arrange an appointment with Carter Jonas.
CONTACT
James Cordery
james.cordery@carterjonas.co.uk
07780 667 005
- Carter Jonas reference
- PDS220001
Suggested properties
Here are a few properties you might like, but within 2 extra miles of your current search
