Lot 1: Manor Farm, Alhampton BA4

Lot 1: Manor Farm, Alhampton BA4

5 Bedroom | Freehold | Secondary Accomodation

Guide price £1,700,000
Castle Cary 0.8 miles
Bruton 3.8 miles
Castle Cary Station 0.8 miles

A delightful 5-bedroom detached farmhouse with adjoining 2-bedroom annexe and an extensive range of barns and stables, many of which would be ideal for conversion, subject to obtaining consent. In all, Lot 1 extends to 10.17 acres. Further land available.

Located in a peaceful setting within a very popular area of mid Somerset, a delightful 5-bedroom detached farmhouse with adjoining 2-bedroom annexe and an extensive range of predominantly traditional stone and tiled barns and stables, many of which would be ideal for conversion, subject to obtaining consent. In all, Lot 1 extends to 10.17 acres.


Location
Manor Farm is located on the edge of the popular hamlet of Alhampton which offers a range of facilities including an excellent primary school, two popular pubs, a village hall, church and farm shop. Nearby is Castle Cary, which offers additional local shopping, delicatessens and an excellent rail link to London Paddington.

Also, some 4.5 miles away is the sought after town of Bruton, home to the now-famous Hauser & Wirth gallery and a variety of exceptional restaurants that include At The Chapel, The Old Pharmacy and Osip. The Newt, which has recently been developed to offer an exceptional country house hotel, exquisite gardens and other attractions, is also located nearby.

Other local attractions include Stourhead Gardens, Babington House and Longleat Safari Park. Further facilities are available in Wells, Gillingham, Wincanton and Shepton Mallet.

Some 7 miles away, the A303 provides a direct route to London via the M3 and there are mainline railway services from Bruton and Castle Cary to London Paddington (approximately 2 hours). Airports at Exeter and Bristol offer connections within UK, Europe and beyond.

The area is also blessed with excellent local state and independent schools including the Bruton schools, Wells Cathedral, All Hallows Prep School, Millfield, Hazelgrove and The Blue School.


Lot 1 - The farmhouse, annexe, buildings, stables and adjoining land totalling 10.17 acres.

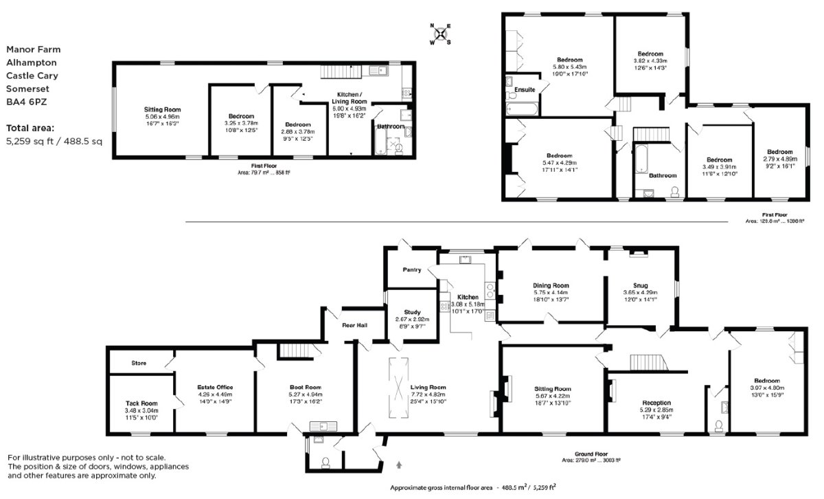
The Farmhouse
Constructed of stone elevations under a slate roof providing spacious family accommodation of side front door from driveway to entrance hall with cloakroom off, large family kitchen and dining area. The room offers fabulous open plan living with light and airy space showing off exposed oak beams and a magnificent stone fireplace.

Adjoining the kitchen is a walk-in pantry and study. An inner hall runs through the length of the house and opens to a dining room with fully glazed doors to garden, sitting room, snug and fourth reception room (currently used as a bedroom). Rear hall with door to garden. Leading from the kitchen, there is a further boot room, utility room, tack room with boiler and stairs leading to an adjoining annexe and rear entrance. Beyond there is a farm office with adjoining tack room, store and strong room.

On the first floor, the accommodation comprises 5 double bedrooms, one with en-suite bathroom and a family bathroom. The principal bedroom enjoys views over the gardens, whilst the others have views to the west over the courtyard and stables.


The Annexe
A flight of stairs leads from the boot room to the first floor annexe which offers two bedrooms, a sitting room at the southern end with far reaching views, kitchen/living room and a bathroom. The annexe enjoys independent access from the main house via the boot room.


Outside
The farmhouse enjoys the benefit of a large, well-maintained garden running to the east, extending to approximately ¼ of an acre.

There is a further seasoned stone terrace which gives way to manicured lawns.

Adjoining are a variety of mature trees running to an old cider barn and an adjoining level orchard which could be used to accommodate a tennis court, swimming pool or other such uses.


Farm Buildings
Situated to the north and west of the farmhouse is an excellent range of principally traditional farm buildings which have until recently been used to provide stabling, but many of which have potential for development to alternative uses.

Most of the buildings are of an attractive stone and tile construction with some comprising a more modern brick and steel construction. There is also a Dutch barn adjoining the access drive.

Adjoining the farmstead with easy access from the buildings is an outdoor riding school with adjoining paddock, horse walker and further former outdoor riding arena.


Land
The land which adjoins the farmstead is laid to pasture, ideal to service the current equestrian enterprise. Access is available both from the farm drive and the rear access. In all, Lot 1 extends to 9.46 acres.


Method of sale
The property is offered for sale by private treaty as a whole or in up to 3 lots.

Tenure & Possession
The property is sold with vacant possession available on completion.

Services
The house is connected to mains water and electricity with private drainage. The house is serviced by oil-fired central heating and a mains gas-fired boiler services the annexe.

Sporting, Timber & Mineral Rights
Included within the sale in so far as they are available.

Wayleaves Easements & Rights of Way
The property is being sold subject to and with the benefit of all rights including: rights of way, whether public or private, light, sport, drainage, water and electricity supplies and other rights and obligations, easements and Quasi-easements and restrictive covenants and all existing proposed wayleaves for masts, pylons, stays, cables, drains, water and gas and other pipes whether referred to in these particulars or not.
There are limited public footpaths crossing the holding. Further information is available from the agents.

EPC Ratings
Manor Farm house: Rated F
The Annexe: Rated E

Council Tax
Band F.

Local Authorities
Somerset Council
www.somerset.gov.uk

Viewings
By prior appointment with the Vendors’ agents, Carter Jonas 01823 428 590.

Health & Safety
Potential purchasers are required to take particular care when inspecting the property. It is recommended to wear supportive footwear for viewings. Potential purchasers are advised to be conscious of potentially uneven and slippery ground surfaces.

Directions
From Castle Cary follow the A371 signed to Shepton Mallett, continue past the train station and after half a mile turn left signed Alhampton. Continue into the village. On approaching the Alhampton Inn turn left where signed “no through road” and continue to the end of the road and the Farm will be found on the right hand side. Alternatively, to approach the farm drive, continue past the Alhampton Inn, follow signs to Sutton bearing left at the junction and continue for approximately ¾ of a mile and the drive will be found on the left hand side of the road.

What3Words
/// lecturers.hilltop.blip

The next steps...

Before making an offer on a property you will want to consider your financial situation, your income and outgoings.

Will you finance the purchase of your next property from the sale of an existing property which can put you in a chain, arrange a mortgage through your bank or buy the property outright.

To help you finance your next property purchase, we have a long established relationship with an independent mortgage broker who can discuss your situation with you.

Remember that having a 'mortgage decision in principle' can make you a more attractive buyer when you make an offer on a property. Contact our mortgage advisers for free, no obligation and impartial advice.

Some advantages of a broker are:

  • They do all the legwork for you, working on your behalf with the lender
  • They compare wholesale mortgage rates from a large number of banks and lenders all at once
  • Their wholesale interest rates can be lower than retail (bank branch) interest rates
  • They offer more loan options because they work with numerous banks and lenders
  • They can finance tricky deals because of their knowledge and various lending partners
  • They are typically easier to get in contact with, and are less bureaucratic.

However advantages of working with your bank are:

  • You may be able to build off an existing relationship (and gain discounts if you have a checking or savings account)
  • You may already know the banker who will handle your mortgage
  • Banks may be more accountable than a smaller shop
  • They may offer lower interest rates in some cases
  • Their ability to add mortgage to existing banking profile and make automatic payments from linked account.

When you see a property you are interested in on our website, call us 24/7 to arrange a viewing. Or if you prefer, get in touch via our website and we will call you back to find a time to view the property that suits you.

Once you’ve found a property you want to buy, it’s time to make an offer. A bit of negotiation is to be expected, however don't offer so little that you end up in a lengthy negotiation process, as you might lose the property altogether if someone else makes a higher bid.

If other offers have been made on a property we aren't legally able to tell you what they are, but we may indicate if they were close to the asking price.

If you have a property to sell, why not see how we can help you.

Or if you’re considering letting your property, we can take the stress out of managing your rental, and our award winning lettings team offer a service that can be tailored to your needs.

Combined with nearly 170 years of experience and one of the highest customer satisfaction scores in the industry, Carter Jonas is the perfect property partner.

Why not book a free, no obligation valuation of your property and find out how Carter Jonas can help you make your next move.

Key property details
Additional attributes
Secondary Accomodation
Tenure
Freehold
Total sq ft
443,005.2 (41,156.6 Sq M) approx.
Carter Jonas reference
TAU240121

Suggested properties

Here are a few properties you might like, but within 2 extra miles of your current search

Guide price £995,000
4 bedroom house
Guide price £1,250,000
4 bedroom house
Guide price £340,000
2 bedroom flat
Guide price £400,000
development plot
Guide price £1,500,000
house
Guide price £1,400,000
house
Guide price £750,000
4 bedroom house
Offers in excess of £800,000
6 bedroom house
Guide price £795,000
7 bedroom house
Guide price £650,000
4 bedroom house
Thinking of selling?

Find out what your property is worth