Oakley Wood, Benson OX10

Oakley Wood, Benson OX10

5 Bedroom | Freehold | 2 Baths

Guide price £750,000
Cholsey 4 miles
Home Farm 1.5 miles
Market Place (Stop C) 2.2 miles

A rare opportunity to secure a plot extending to approx 4 acres with full planning to build a five bedroom detached house. All enquires please call Newbury Carter Jonas on 01635 263010.

DESCRIPTION
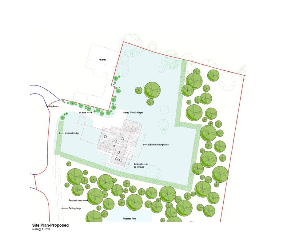
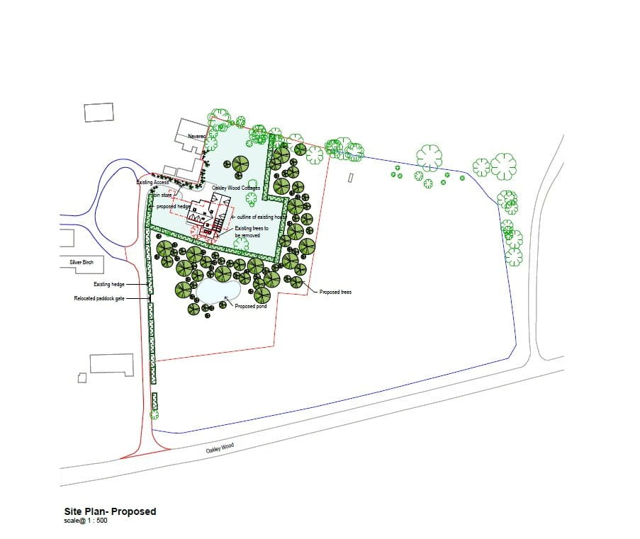
A rare opportunity to acquire a level plot extending to approximately 4 acres with planning consent for a light and spacious detached eco home within this area of outstanding natural beauty. The approved plans are for a detached eco home with accommodation arranged over two floors, designed with expansive glazing to maximise natural light and to take in the rural views.
The accommodation breakdown is as follows
- Ground floor: 116sqm
- First floor: 139sqm
- Double Garage: 36sqm
- TOTAL: 291sqm.

Further details on the planning consent together with associated conditions can be found on the South Oxfordshire District Council website using planning reference P24/S3648/FUL. The planning was granted on 9th January 2025 for Demolition of existing buildings and the erection of a replacement self build dwelling and garage and associated landscape and highway works. (As amended by drawings received 7 January 2025 enlarging garage size and showing solar panels.)

The overall land extends to approximately 4 acres and is utilised by the current owner as a ‘small holding’. There is a useful timber field shelter, chicken coup and two small storage sheds. To the side of the existing cottages is a mini-orchard and a number of soft fruit beds producing raspberries and blackcurrants. The boundary to the north is made up of a 9 metre strip of woodland which extends the entire width of the plot. There is a gravelled parking area to the front of number one providing space for several vehicles.

LOCATION
The properties are attractively located in a semi-rural setting just off the A4130, well placed for easy access to Wallingford, Oxford, Reading and Henley-on-Thames. The transport links of the M40, A4074, trains from Didcot or Cholsey and London Heathrow are close by, and there are excellent pubs and restaurants within a short drive. Oakley Wood is close to a number of popular private schools such as Cranford House for girls and Moulsford for boys, Pangbourne College and the Oratory School in Reading. There are also a number of excellent state schools nearby including Wallingford Secondary School, Didcot Girls School and St-Birinus (Didcot Boys), Fir Tree Junior School and Crowmarsh Gifford Church of England Primary School.

ADDITIONAL INFORMATION
Exisiting properties council tax bands B and C.
EPC ratings: F
Mains electricity and water connected.
Private drainage.

DIRECTIONS TO OX10 6QG
On the A4074 Oxford to Reading road, head south at Shillingford or west at Crowmarsh roundabouts. The properties can be found just off the A4130 down an access lane.

what3words: ///crouching.dated.meanings








































DESCRIPTION
A rare opportunity to secure a pair of semi-detached single storey ‘cottages’ with an adjoining 4 acre parcel of land. The bungalows are of timber frame and clad non standard construction under a tin roof.
1 The Cottages
Accessed via a wooden pedestrian gate from the lane, this cottage is set in an enclosed garden area to the front with steps leading on to the covered timber decked porch. The front door opens into the kitchen, the living room can be found beyond and has a multi fuel stove (with back burner servicing both the central heating and hot water system), south facing window, and doors leading to the two bedrooms. A third door opens into the office area with the shower room beyond.
This cottage has been successfully let for a number of years and could provide a potential income for any future purchaser.


2 The Cottages
Number 2 is the larger of the two cottages and is approached via a five bar wooden field gate leading from the lane, opening into a gravelled parking area. There is an enclosed and immensely charming timber decked terrace to the front of the property; perfect for entertaining in all weathers. From here a wooden stable door leads into the country style, light filled kitchen, complete with fitted base and open wall units, Belfast sink, 5 burner LPG gas hob with electric oven below, and additional dedicated space for freestanding fridge/freezer and dishwasher. There is a useful breakfast bar which forms part of the ‘U’ shaped work surface area. The open plan living accommodation extends from the kitchen into a dining area with ‘sitting room’ to the rear. From here, a single French door, flanked by full length windows either side looks out onto a lovely view of the garden and grazing land beyond. There is a multi-fuel stove (with back boiler servicing both the central heating radiators and hot water system) which gives the space a delightful ‘cosy cottage’ feel. Adjoining the sitting room area are doors leading to two of the bedrooms and the bathroom, which is fitted with a ‘P’ shaped bath and thermostatic mixer shower over.
A second door from the terrace leads into a utility vestibule with space for a number of appliances. To the left is door access to the attractive master bedroom which benefits from a en-suite shower room complete with ‘P’ shaped glass enclosure and rain shower. The bedroom has a half vaulted ceiling and windows facing both south and west making it particularly light and airy. The useful study/studio space can be found to the rear of the utility room.

OUTSIDE
The land adjoining the properties extends to approximately 4 acres and is utilised by the current owner as a ‘small holding’ with allocated grazing land for sheep and dedicated fenced areas housing geese, ducks and chickens. There is a useful timber field shelter, chicken coup and two small storage sheds. To the side of the cottages is a mini-orchard and a number of soft fruit beds producing raspberries and blackcurrants. The boundary to the north is made up of a 9 metre strip of woodland which extends the entire width of the plot. There is a gravelled parking area to the front of number one providing space for several vehicles.


Planning approved for a light and spacious eco home set within approx. 4 Acres of land, including woodland and
grazing fields, designated as "Area of Outstanding Natural Beauty"
Guide price £850,000 5 3 2 F
Description
The approved plans feature a two-story, 5-bedroom, eco-home,
designed with expansive glazing to maximise natural light and
enjoyment of the surrounding rural views.
Set within approx. 4 acres of land, including woodland and grazing
fields, designated as ‘Area of Outstanding Natural Beauty’.
Designed by local award-winning architects, Lapd Architects.
The plans features:
- Ground floor: 116sqm
- Garage: 36sqm
- First floor: 139sqm
- TOTAL: 291sqm
Situated within an easy drive to Wallingford and Henley-onThames. Featuring popular marketplaces, shops, cafés, bars and
restaurants along with Waitrose and Lidl.
Easy access to the M4, M40 and A34. Harwell campus and
mainline stations can be found at nearby Cholsey & Didcot.
The plot currently contains 2 timber properties, in liveable
condition.
NOTE: Heating type Air Source Heat Pump is what is specified for
the new build, currently the property is electric heating.
These particulars, whilst believed to be accurate are set out as a general outline only for guidance and do not constitute any part of an offer or contract. Intending purchasers should not rely on them as statements of
representation of fact, but must satisfy themselves by inspection or otherwise as to their accuracy. No person in this firms employment has the authority to make or give any representation or warranty in respect of the
property.
Area Map
Floor Plan

The next steps...

Before making an offer on a property you will want to consider your financial situation, your income and outgoings.

Will you finance the purchase of your next property from the sale of an existing property which can put you in a chain, arrange a mortgage through your bank or buy the property outright.

To help you finance your next property purchase, we have a long established relationship with an independent mortgage broker who can discuss your situation with you.

Remember that having a 'mortgage decision in principle' can make you a more attractive buyer when you make an offer on a property. Contact our mortgage advisers for free, no obligation and impartial advice.

Some advantages of a broker are:

  • They do all the legwork for you, working on your behalf with the lender
  • They compare wholesale mortgage rates from a large number of banks and lenders all at once
  • Their wholesale interest rates can be lower than retail (bank branch) interest rates
  • They offer more loan options because they work with numerous banks and lenders
  • They can finance tricky deals because of their knowledge and various lending partners
  • They are typically easier to get in contact with, and are less bureaucratic.

However advantages of working with your bank are:

  • You may be able to build off an existing relationship (and gain discounts if you have a checking or savings account)
  • You may already know the banker who will handle your mortgage
  • Banks may be more accountable than a smaller shop
  • They may offer lower interest rates in some cases
  • Their ability to add mortgage to existing banking profile and make automatic payments from linked account.

When you see a property you are interested in on our website, call us 24/7 to arrange a viewing. Or if you prefer, get in touch via our website and we will call you back to find a time to view the property that suits you.

Once you’ve found a property you want to buy, it’s time to make an offer. A bit of negotiation is to be expected, however don't offer so little that you end up in a lengthy negotiation process, as you might lose the property altogether if someone else makes a higher bid.

If other offers have been made on a property we aren't legally able to tell you what they are, but we may indicate if they were close to the asking price.

If you have a property to sell, why not see how we can help you.

Or if you’re considering letting your property, we can take the stress out of managing your rental, and our award winning lettings team offer a service that can be tailored to your needs.

Combined with nearly 170 years of experience and one of the highest customer satisfaction scores in the industry, Carter Jonas is the perfect property partner.

Why not book a free, no obligation valuation of your property and find out how Carter Jonas can help you make your next move.

Key property details
Property attributes
Detached
Era
New
Parking available
Double Garage
Additional attributes
Garden Land/Paddock
Locality
Rural
Tenure
Freehold
Energy efficiency rating
F
Total sq ft
3,132 (291 Sq M) approx.
Carter Jonas reference
OXF150465

Suggested properties

Here are a few properties you might like, but within 2 extra miles of your current search

Guide price £535,000
3 bedroom flat
Guide price £250,000
2 bedroom flat
Guide price £200,000
1 bedroom flat
Guide price £1,075,000
4 bedroom house
Guide price £475,000
3 bedroom cottage
Asking price £325,000
2 bedroom house
Guide price £1,200,000
4 bedroom house
Guide price £925,000
5 bedroom house
Guide price £450,000
2 bedroom house
Guide price £1,500,000
4 bedroom house
Guide price £450,000
development plot
Guide price £395,000
2 bedroom flat
Thinking of selling?

Find out what your property is worth