Clare Street, Cambridge CB4

Clare Street, Cambridge CB4

3 Bedroom | Freehold | 3 Baths | Outbuildings

Guide price £799,995
Cambridge 1.7 miles
Cambridge North 2 miles
Shelford 4.7 miles

An idyllically positioned three-bedroom Victorian house boasting a wonderful blend of period character and modern style, presented to particularly impressive standard throughout.

An idyllically positioned three-bedroom Victorian house boasting a wonderful blend of period character and modern style, presented to a particularly impressive standard throughout.

- City centre - approx. 1 mile
- Addenbrookes Hospital - approx. 3.5 miles
- Cambridge Railway Station - approx 2 miles

• 3 Reception rooms
• Garden room
• Kitchen/breakfast room
• 3 Bedrooms
• 3 Bathrooms
• South facing rear garden
• Garden studio/home office
• No onward chain
• Residents parking/permit parking available
• EPC rating C

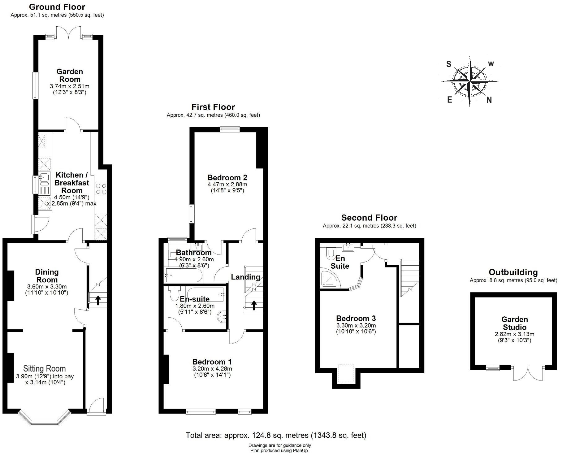
Description:

The property, boasting in excess of 1,300 sq.ft of accommodation offers three reception rooms, a kitchen, three double sized bedrooms and three bathrooms. In additional to that is the studio in the south-facing rear garden.

Entering into the entrance hall with a tiled floor and stairs rising to the first floor. The sitting room enjoys a large bay-window and an ornate and original fireplace. Open from the sitting room is the dining room that in turn leads to the kitchen, offering a stylishly fitted kitchen with integrated appliances including an oven, hob, fridge, freezer, washing machine and dishwater. Beyond the kitchen is the garden room with French doors leading to the rear garden terrace.

The landing offers stairs rising from the ground floor and to the top floor. The first floor consists on two double sized bedrooms and two fantastically presented bathrooms; one of which being the ensuite shower room and the other being Jack-and-Jill to the rear bedroom and the main bathroom.

On the second floor is a further double sized bedroom with fitted eaves storage and another stylishly presented ensuite shower room.

Outside:

The property is approached via the small front garden that consists of a pathway leading to the front door, is enclosed by a low-level brick wall and offers an established shrub. The south-facing rear garden is particularly well presented with a paved terrace, artificial lawn, a mature olive tree and a garden studio that has a slate roof and electricity.

Location:

Clare Street is a quiet residential area, just north of the River Cam and offers easy access into the city centre by foot or bicycle via Jesus Green. There are a wide range of local shops and other amenities nearby and the property is ideally located for access to many university colleges and departments. London commuters benefit from a regular and direct train service from Cambridge station with journey times from just 50 minutes.

Additional Information:

Tenure: Freehold

Services: Gas fired central heating. Mains water, gas, drainage and electricity

Local Authority: Cambridge City Council

Council Tax: Band E

Viewings: Strictly by appointment with the Selling Agents, Carter Jonas 01223 403330

The next steps...

Before making an offer on a property you will want to consider your financial situation, your income and outgoings.

Will you finance the purchase of your next property from the sale of an existing property which can put you in a chain, arrange a mortgage through your bank or buy the property outright.

To help you finance your next property purchase, we have a long established relationship with an independent mortgage broker who can discuss your situation with you.

Remember that having a 'mortgage decision in principle' can make you a more attractive buyer when you make an offer on a property. Contact our mortgage advisers for free, no obligation and impartial advice.

Some advantages of a broker are:

  • They do all the legwork for you, working on your behalf with the lender
  • They compare wholesale mortgage rates from a large number of banks and lenders all at once
  • Their wholesale interest rates can be lower than retail (bank branch) interest rates
  • They offer more loan options because they work with numerous banks and lenders
  • They can finance tricky deals because of their knowledge and various lending partners
  • They are typically easier to get in contact with, and are less bureaucratic.

However advantages of working with your bank are:

  • You may be able to build off an existing relationship (and gain discounts if you have a checking or savings account)
  • You may already know the banker who will handle your mortgage
  • Banks may be more accountable than a smaller shop
  • They may offer lower interest rates in some cases
  • Their ability to add mortgage to existing banking profile and make automatic payments from linked account.

When you see a property you are interested in on our website, call us 24/7 to arrange a viewing. Or if you prefer, get in touch via our website and we will call you back to find a time to view the property that suits you.

Once you’ve found a property you want to buy, it’s time to make an offer. A bit of negotiation is to be expected, however don't offer so little that you end up in a lengthy negotiation process, as you might lose the property altogether if someone else makes a higher bid.

If other offers have been made on a property we aren't legally able to tell you what they are, but we may indicate if they were close to the asking price.

If you have a property to sell, why not see how we can help you.

Or if you’re considering letting your property, we can take the stress out of managing your rental, and our award winning lettings team offer a service that can be tailored to your needs.

Combined with nearly 170 years of experience and one of the highest customer satisfaction scores in the industry, Carter Jonas is the perfect property partner.

Why not book a free, no obligation valuation of your property and find out how Carter Jonas can help you make your next move.

Key property details
Property attributes
End of Terrace
Era
Period
Parking available
Residents Parking
Additional attributes
Outbuildings Garden
Locality
Town/City
Tenure
Freehold
Energy efficiency rating
C
Total sq ft
1,343 (124.8 Sq M) approx.
Carter Jonas reference
CAH240280

Suggested properties

Here are a few properties you might like, but within 2 extra miles of your current search

Asking price £769,950
3 bedroom flat
Asking price £849,950
3 bedroom flat
Guide price £800,000
4 bedroom house
Guide price £869,995
4 bedroom house
Guide price £780,000
4 bedroom house
Guide price £725,000
4 bedroom house
Thinking of selling?

Find out what your property is worth