Richmond Road, Cambridge CB4

Richmond Road, Cambridge CB4

3 Bedroom | Freehold | 2 Baths

Guide price £575,000
Cambridge 2.1 miles
Cambridge North 2.2 miles
Waterbeach 4.9 miles

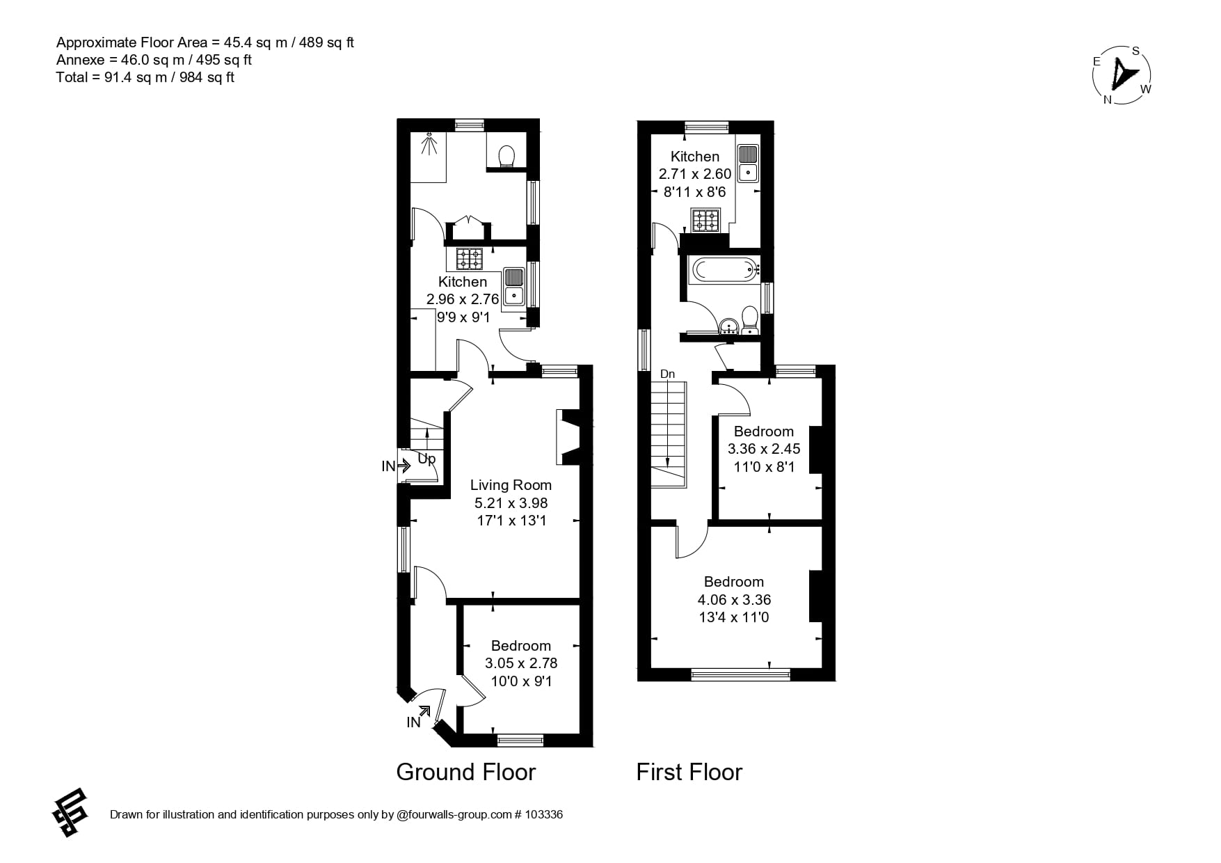
Currently arranged as two well-finished apartments which were updated in 2023.

Currently arranged as two well-finished apartments which were updated in 2023.

- Science Park - approx. 3 miles
- City Centre - approx. 1.3 miles
- Cambridge North Railway Station – approx. 3 miles

• Offered with no chain
• Sold as a single dwelling with scope to reconfigure
• Currently arranged as two well-presented apartments with sitting tenant in top apartment
• Bright living areas
• Fitted kitchens with appliances included
• Private enclosed courtyard garden
• Brick-built outbuilding with existing planning permission for a studio unit
• A rare opportunity to secure a versatile home in a highly desirable Cambridge location
• EPC ratings D & E

Description:

The property is being sold as a single dwelling, presenting an exciting opportunity for the next owner to keep as is or configure the home to their own requirements, whether reinstating it as a generous single residence or re-imagining the layout to create a unique multi-use space.

Across the existing accommodation you will find bright living areas with attractive feature fireplaces, fitted kitchens including appliances such as oven, hob, fridge-freezer, dishwasher and washing machine, as well as contemporary bathrooms with either shower-over-bath or enclosed shower cubicles. The principal bedrooms also benefit from a charming feature fireplace, and there is an additional utility area with washing machine facilities.

Altogether, this is a fantastic opportunity to acquire a property with genuine versatility, strong fundamentals, and a highly sought-after location close to Cambridge’s key amenities.

Outside:

A back door leads out to the enclosed courtyard garden, which in turn gives access to a brick-built outbuilding. This outbuilding already has planning permission which offers added potential, the home offers the rare capability to become something exceptionally flexible ideal for those seeking studio space, a home office or guest accommodation.

Location:

The property is situated in a popular residential area to the north of Cambridge city centre, well placed for access to a range of local amenities, including nearby supermarkets and primary schooling. Cambridge provides an extensive selection of high street and independent shops, cafés, bars, restaurants, and a variety of cultural and leisure facilities.

The location offers convenient access to key transport routes, with the A14 and M11 connecting to surrounding regional centres and the wider motorway network. Cambridge mainline station, approximately 3 miles from the property, provides regular rail services to London and other destinations.

Additional Information:

Tenure: Freehold

Services: Mains water, electricity, gas & drainage. Gas central heating

Local Authority: Cambridge City Council

Council Tax: Band C (42) & Band B (42A)

Viewings: Strictly by telephone appointment with the Selling Agents, Carter Jonas 01223 403330

The next steps...

Before making an offer on a property you will want to consider your financial situation, your income and outgoings.

Will you finance the purchase of your next property from the sale of an existing property which can put you in a chain, arrange a mortgage through your bank or buy the property outright.

To help you finance your next property purchase, we have a long established relationship with an independent mortgage broker who can discuss your situation with you.

Remember that having a 'mortgage decision in principle' can make you a more attractive buyer when you make an offer on a property. Contact our mortgage advisers for free, no obligation and impartial advice.

Some advantages of a broker are:

  • They do all the legwork for you, working on your behalf with the lender
  • They compare wholesale mortgage rates from a large number of banks and lenders all at once
  • Their wholesale interest rates can be lower than retail (bank branch) interest rates
  • They offer more loan options because they work with numerous banks and lenders
  • They can finance tricky deals because of their knowledge and various lending partners
  • They are typically easier to get in contact with, and are less bureaucratic.

However advantages of working with your bank are:

  • You may be able to build off an existing relationship (and gain discounts if you have a checking or savings account)
  • You may already know the banker who will handle your mortgage
  • Banks may be more accountable than a smaller shop
  • They may offer lower interest rates in some cases
  • Their ability to add mortgage to existing banking profile and make automatic payments from linked account.

When you see a property you are interested in on our website, call us 24/7 to arrange a viewing. Or if you prefer, get in touch via our website and we will call you back to find a time to view the property that suits you.

Once you’ve found a property you want to buy, it’s time to make an offer. A bit of negotiation is to be expected, however don't offer so little that you end up in a lengthy negotiation process, as you might lose the property altogether if someone else makes a higher bid.

If other offers have been made on a property we aren't legally able to tell you what they are, but we may indicate if they were close to the asking price.

If you have a property to sell, why not see how we can help you.

Or if you’re considering letting your property, we can take the stress out of managing your rental, and our award winning lettings team offer a service that can be tailored to your needs.

Combined with nearly 170 years of experience and one of the highest customer satisfaction scores in the industry, Carter Jonas is the perfect property partner.

Why not book a free, no obligation valuation of your property and find out how Carter Jonas can help you make your next move.

Key property details
Property attributes
End of Terrace
Parking available
Residents Parking
Additional attributes
Garden
Locality
Town/City
Tenure
Freehold
Energy efficiency rating
E
Total sq ft
984 (91.4 Sq M) approx.
Carter Jonas reference
CAH260005

Suggested properties

Here are a few properties you might like, but within 2 extra miles of your current search

Guide price £625,000
3 bedroom house
Guide price £600,000
3 bedroom house
Guide price £575,000
3 bedroom flat
Guide price £575,000
3 bedroom flat
Guide price £575,000
3 bedroom house
Thinking of selling?

Find out what your property is worth