Residential Development Opportunity, Low Farm Barns YO26

Residential Development Opportunity, Low Farm Barns YO26

Freehold

Guide price £950,000
Hammerton 2.9 miles
Cattal 3 miles
Stone Gate 2 miles

A FANTASTIC DEVELOPMENT OPPORTUNITY - two substantial Grade II listed barns with planning permission and listed building consent granted for conversion into two individual family houses, occupying a lovely country setting between Boroughbridge and Green Hammerton.

Development opportunities of this nature are few and far between.

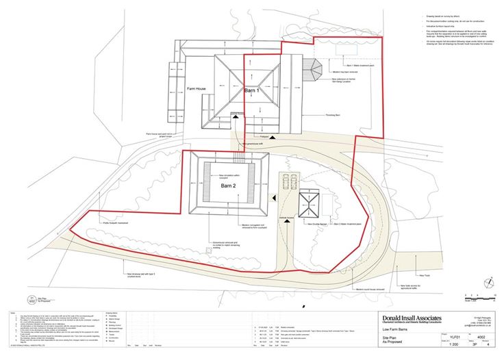
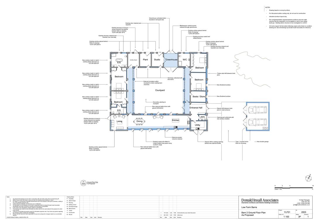
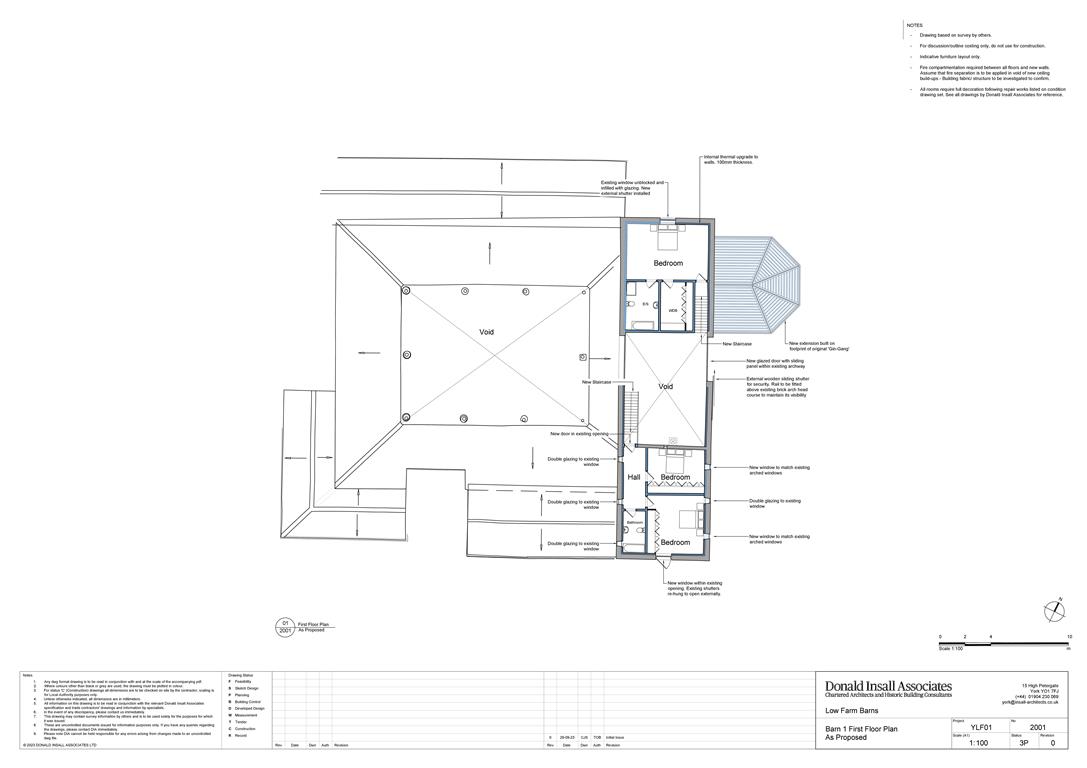
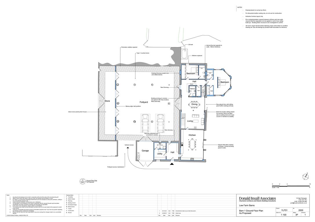
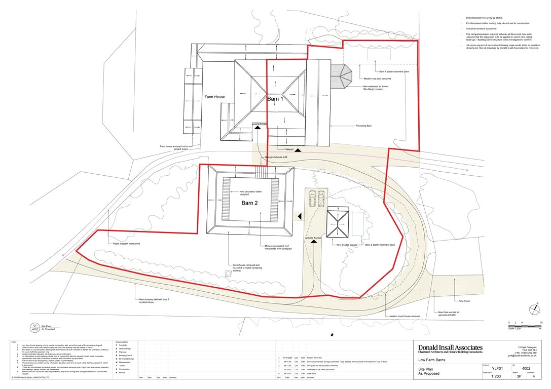
Low Farm Barns currently comprises 2 traditional Grade II listed barns. Planning permission and listed building consent was granted in March 2024 for the conversion, alteration and extension of 1 Grade II listed barn and 1 curtilage listed barn into 2 residential dwellings.

Planning application reference number – ZC23/04488/FUL

Listed building consent reference number – ZC23/04489/LB

The planning process was overseen by Tom Bromet at Donald Insall Associates in York, Chartered Architects and Historic Building Consultants. The public access system (planning portal) for Harrogate Borough Council planning application documents contains a full record of the documents submitted including a heritage, design and access statement which provides a
comprehensive overview.

The site area extends to almost 1.25 acres (0.51ha). Additional land may be available by separate negotiation.

Mains electricity and water are available but will need spurring off from the existing supply to the
farmhouse. Sewerage treatment plants are to be installed for each of the barns.

The vendor will assume the responsibility to remove the roundhouse barn which is located to the east of Barn 2.

LOCATION

The barns occupy an idyllic country setting, just to the north of the village, accessed via a long private driveway which is shared with Low Farmhouse. Thorpe Underwood is a small rural village with excellent accessibility. Everyday facilities are available in neighbouring villages with more extensive facilities in Boroughbridge, Knaresborough, Harrogate and York. There is nearby access to the A59 and A1(M) for those looking to travel further afield and there are local railway stations in the nearby villages of Cattal and Kirk Hammerton operating frequent services to York, Harrogate and Leeds.

The next steps...

Before making an offer on a property you will want to consider your financial situation, your income and outgoings.

Will you finance the purchase of your next property from the sale of an existing property which can put you in a chain, arrange a mortgage through your bank or buy the property outright.

To help you finance your next property purchase, we have a long established relationship with an independent mortgage broker who can discuss your situation with you.

Remember that having a 'mortgage decision in principle' can make you a more attractive buyer when you make an offer on a property. Contact our mortgage advisers for free, no obligation and impartial advice.

Some advantages of a broker are:

  • They do all the legwork for you, working on your behalf with the lender
  • They compare wholesale mortgage rates from a large number of banks and lenders all at once
  • Their wholesale interest rates can be lower than retail (bank branch) interest rates
  • They offer more loan options because they work with numerous banks and lenders
  • They can finance tricky deals because of their knowledge and various lending partners
  • They are typically easier to get in contact with, and are less bureaucratic.

However advantages of working with your bank are:

  • You may be able to build off an existing relationship (and gain discounts if you have a checking or savings account)
  • You may already know the banker who will handle your mortgage
  • Banks may be more accountable than a smaller shop
  • They may offer lower interest rates in some cases
  • Their ability to add mortgage to existing banking profile and make automatic payments from linked account.

When you see a property you are interested in on our website, call us 24/7 to arrange a viewing. Or if you prefer, get in touch via our website and we will call you back to find a time to view the property that suits you.

Once you’ve found a property you want to buy, it’s time to make an offer. A bit of negotiation is to be expected, however don't offer so little that you end up in a lengthy negotiation process, as you might lose the property altogether if someone else makes a higher bid.

If other offers have been made on a property we aren't legally able to tell you what they are, but we may indicate if they were close to the asking price.

If you have a property to sell, why not see how we can help you.

Or if you’re considering letting your property, we can take the stress out of managing your rental, and our award winning lettings team offer a service that can be tailored to your needs.

Combined with nearly 170 years of experience and one of the highest customer satisfaction scores in the industry, Carter Jonas is the perfect property partner.

Why not book a free, no obligation valuation of your property and find out how Carter Jonas can help you make your next move.

Key property details
Locality
Village
Tenure
Freehold
Carter Jonas reference
HAR240069

Suggested properties

Here are a few properties you might like, but within 2 extra miles of your current search

Asking price £850,000
4 bedroom
Offers over £425,000
4 bedroom house
Asking price £1,050,000
5 bedroom house
Guide price £1,395,000
5 bedroom house
Thinking of selling?

Find out what your property is worth