Littleworth, Pewsey SN9

Littleworth, Pewsey SN9

5 Bedroom | Freehold | 3 Baths

Guide price £950,000
Pewsey 1.8 miles
North Street 1.6 miles
Station Approach 1.7 miles

A spacious and extended five bedroom house with superb views, set in a large plot on the edge of a popular Pewsey Vale village.

Description

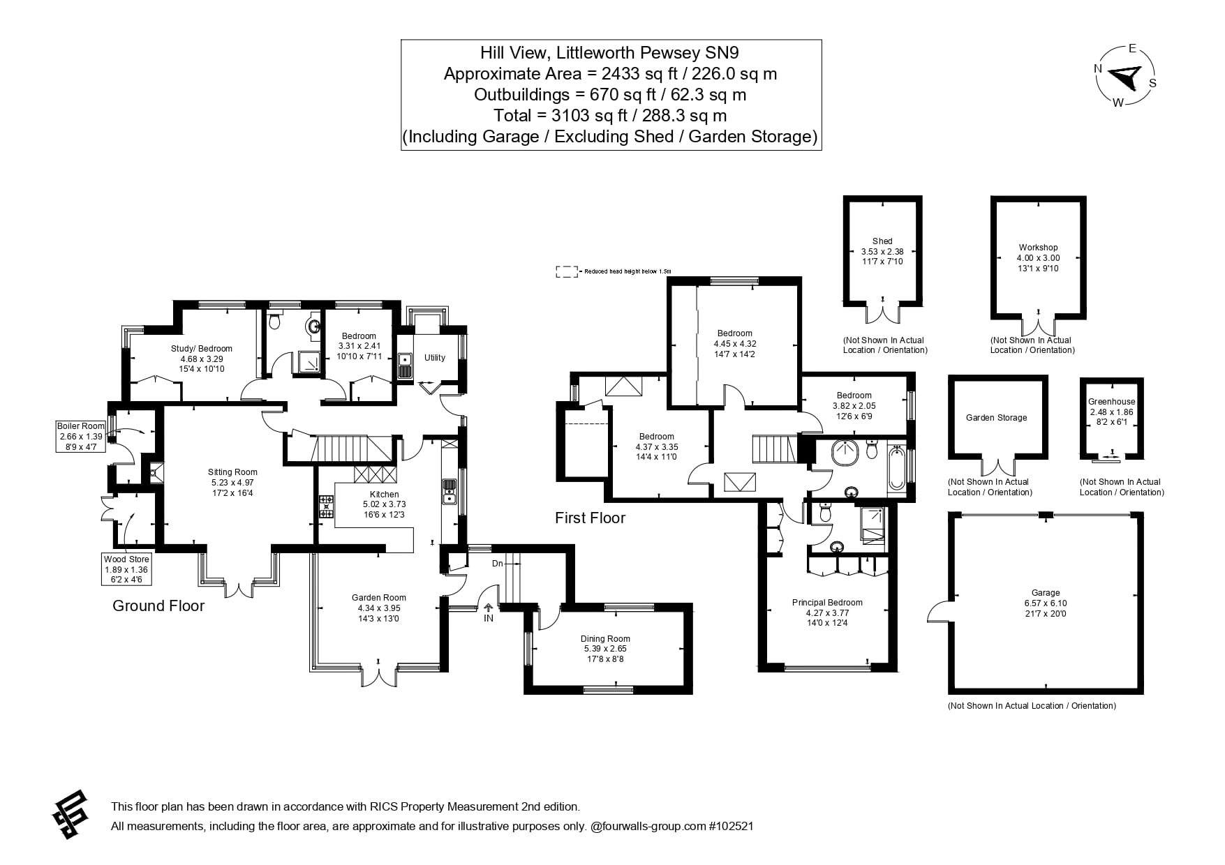
Hill View is an impressive and substantial family house occupying a large plot (c0.67 acres) and enjoying far reaching views over the surrounding countryside.

Originally built in the 1960s, the property has undergone significant extension over the years and at 2433 square feet there is an abundance of light and well planned accommodation. The striking timber clad two storey extension to the western facade enhances the overall design.

The standout room on the ground floor is the open-plan kitchen/dining/living area. A fabulous room in which to entertain and from where you can enjoy views out over the garden and fields beyond. The kitchen itself if fitted with a great range of units and built in appliances, with a handy utility room located off the main hall.

The expansive sitting room is centred around the wood-burning stove and has been extended by the current owners, creating a large bay window with double doors leading to the garden. The separate dining room and study provide two extra reception rooms suitable for flexible use, with the option of the latter doubling up as a sixth bedroom. A ground floor bedroom with an adjoining and well-appointed bathroom provide further versatility.

Upstairs, there are four well proportioned bedrooms, including an impressive vaulted principal suite with floor to ceiling windows and panoramic views over the surrounding countryside. A family bathroom serves the remaining bedrooms.

Outside

A double garage and generous driveway parking provide ample room for vehicles, while a range of outbuildings including a garden shed, workshop, woodstore and a greenhouse, offer extensive practical and hobby space.

Set within approximately 0.67 acres, the property enjoys a delightful garden, backing onto open fields. There is a large westerly terrace, accessed off the kitchen/dining room, perfect for afternoon and evening sun - an ideal setting for outdoor dining and entertaining. The gardens are filled with a great range of shrubs and also feature a pond and delightful orchard, adding to the rural appeal. Environmentally conscious buyers will appreciate the EV charging point and solar panels, which help to reduce running costs.

Situation

Hill View is situated in the small rural hamlet of Littleworth, just north of the better know village of Milton Lilbourne. The area is well known for its unspoilt small villages and hamlets amongst the beautiful, gently rolling countryside of the Vale of Pewsey. There is immediate access to wonderful walking, riding and cycling as well as the Kennet and Avon canal nearby. Milton Lilbourne is within a five minute walk and offers a parish church and village hall. The larger village of Pewsey is just over two miles away and enjoys a broad ranges of amenities including supermarket, doctors and dental surgeries, chemist, cafes, shops and range of sports clubs. There is also a leisure centre with gym and swimming pool. Pewsey railway station has trains directly into London Paddington in about a hour. Easy access by car into Marlborough c.15 minutes.

For schooling, the Easton Royal Academy (primary) under 2 miles away is affiliated with St Johns Academy, Marlborough (secondary). Both excellent options. For those interested in independant education, again excellent options with St Francis prep, Pewsey and Dauntseys and Marlborough College, all within easy reach.

What3Words - ///huddling.enormous.overt

Services and Material Information

- Freehold
- Mains water, mains drainage, oil fired central heating.
- Council tax band: F
- Energy efficiency rating: B
- Broadband and mobile coverage. Please refer to Ofcom website for more details

The next steps...

Before making an offer on a property you will want to consider your financial situation, your income and outgoings.

Will you finance the purchase of your next property from the sale of an existing property which can put you in a chain, arrange a mortgage through your bank or buy the property outright.

To help you finance your next property purchase, we have a long established relationship with an independent mortgage broker who can discuss your situation with you.

Remember that having a 'mortgage decision in principle' can make you a more attractive buyer when you make an offer on a property. Contact our mortgage advisers for free, no obligation and impartial advice.

Some advantages of a broker are:

  • They do all the legwork for you, working on your behalf with the lender
  • They compare wholesale mortgage rates from a large number of banks and lenders all at once
  • Their wholesale interest rates can be lower than retail (bank branch) interest rates
  • They offer more loan options because they work with numerous banks and lenders
  • They can finance tricky deals because of their knowledge and various lending partners
  • They are typically easier to get in contact with, and are less bureaucratic.

However advantages of working with your bank are:

  • You may be able to build off an existing relationship (and gain discounts if you have a checking or savings account)
  • You may already know the banker who will handle your mortgage
  • Banks may be more accountable than a smaller shop
  • They may offer lower interest rates in some cases
  • Their ability to add mortgage to existing banking profile and make automatic payments from linked account.

When you see a property you are interested in on our website, call us 24/7 to arrange a viewing. Or if you prefer, get in touch via our website and we will call you back to find a time to view the property that suits you.

Once you’ve found a property you want to buy, it’s time to make an offer. A bit of negotiation is to be expected, however don't offer so little that you end up in a lengthy negotiation process, as you might lose the property altogether if someone else makes a higher bid.

If other offers have been made on a property we aren't legally able to tell you what they are, but we may indicate if they were close to the asking price.

If you have a property to sell, why not see how we can help you.

Or if you’re considering letting your property, we can take the stress out of managing your rental, and our award winning lettings team offer a service that can be tailored to your needs.

Combined with nearly 170 years of experience and one of the highest customer satisfaction scores in the industry, Carter Jonas is the perfect property partner.

Why not book a free, no obligation valuation of your property and find out how Carter Jonas can help you make your next move.

Key property details
Property attributes
Detached
Era
Modern
Parking available
Off Street Parking Double Garage
Additional attributes
Garden
Locality
Village
Tenure
Freehold
Energy efficiency rating
B
Total sq ft
3,103 (288.3 Sq M) approx.
Carter Jonas reference
MAR250436

Suggested properties

Here are a few properties you might like, but within 2 extra miles of your current search

Guide price £535,000
4 bedroom cottage
Guide price £1,250,000
4 bedroom house
Guide price £1,000,000
6 bedroom house
Asking price £300,000
3 bedroom house
Guide price £315,000
2 bedroom house
Guide price £150,000
1 bedroom flat
Guide price £1,000,000
3 bedroom house
Guide price £750,000
4 bedroom house
Guide price £675,000
4 bedroom house
Guide price £160,000
1 bedroom house
Guide price £575,000
3 bedroom cottage
Offers over £1,700,000
5 bedroom house
Thinking of selling?

Find out what your property is worth