Stockton Lane, Stockton on the Forest YO32

Stockton Lane, Stockton on the Forest YO32

5 Bedroom | Freehold | 3 Baths

£875,000
York (YRK) 3.8 miles
Stockton Primary School 0.9 miles
Asda 1.3 miles

Fully renovated detached home of over 2,500 sq ft with show-stopping open-plan living and countryside views.

Offered with no forward chain, this beautifully renovated detached home of over 2,500 sq. ft, positioned along Stockton Lane, offers superb family accommodation with breathtaking views over open countryside.

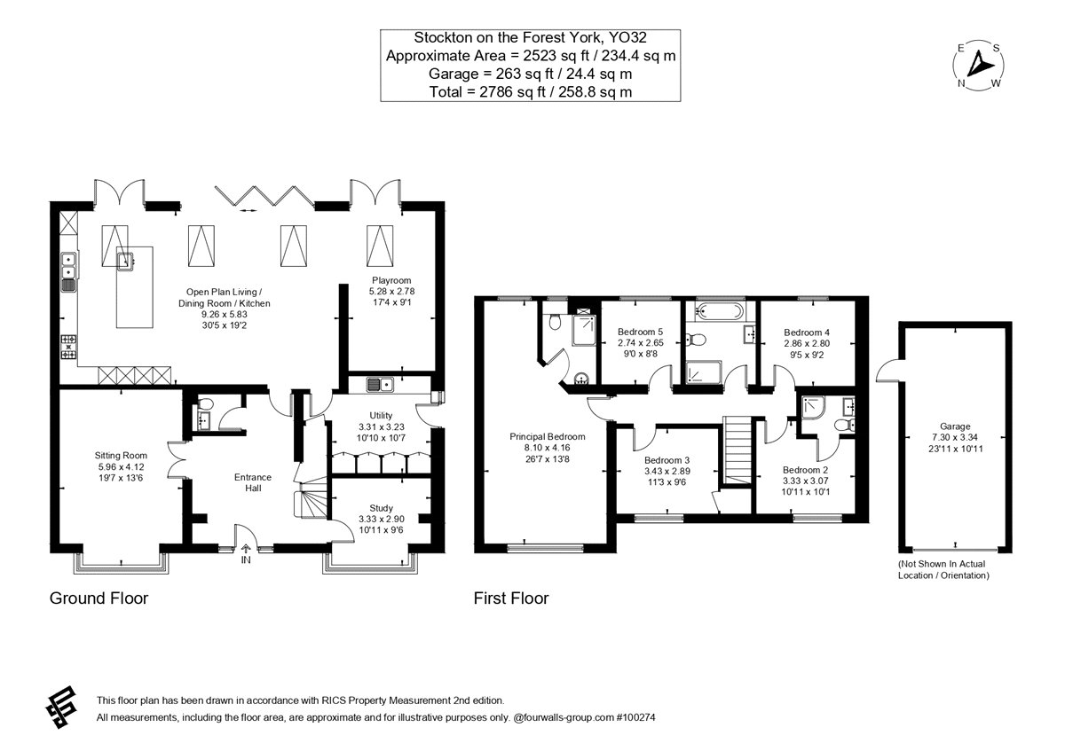
The property opens with an impressive entrance hall leading to a study, sitting room and ground-floor cloakroom. The stand-out feature is the expansive open-plan kitchen, dining and living space – extending to around 30’ x 19’ – forming the heart of the home. Flooded with natural light and flowing into a separate playroom, this area opens directly onto the landscaped garden, perfectly designed for family life and entertaining alike.

Upstairs complements the space and balance of the ground floor, offering five generous bedrooms and three bathrooms, including two luxurious ensuites. The principal suite enjoys dual aspects to the front and rear, capturing superb rural views. Externally, the gardens back onto open fields, offering a wonderful sense of privacy and outlook.

Situated towards Stockton on the Forest, the property enjoys an ideal blend of semi-rural living with excellent access into York city centre, the village amenities, the A64 and wider road network. A truly turn-key home. Ready to move in, relax, and enjoy.

The next steps...

Before making an offer on a property you will want to consider your financial situation, your income and outgoings.

Will you finance the purchase of your next property from the sale of an existing property which can put you in a chain, arrange a mortgage through your bank or buy the property outright.

To help you finance your next property purchase, we have a long established relationship with an independent mortgage broker who can discuss your situation with you.

Remember that having a 'mortgage decision in principle' can make you a more attractive buyer when you make an offer on a property. Contact our mortgage advisers for free, no obligation and impartial advice.

Some advantages of a broker are:

  • They do all the legwork for you, working on your behalf with the lender
  • They compare wholesale mortgage rates from a large number of banks and lenders all at once
  • Their wholesale interest rates can be lower than retail (bank branch) interest rates
  • They offer more loan options because they work with numerous banks and lenders
  • They can finance tricky deals because of their knowledge and various lending partners
  • They are typically easier to get in contact with, and are less bureaucratic.

However advantages of working with your bank are:

  • You may be able to build off an existing relationship (and gain discounts if you have a checking or savings account)
  • You may already know the banker who will handle your mortgage
  • Banks may be more accountable than a smaller shop
  • They may offer lower interest rates in some cases
  • Their ability to add mortgage to existing banking profile and make automatic payments from linked account.

When you see a property you are interested in on our website, call us 24/7 to arrange a viewing. Or if you prefer, get in touch via our website and we will call you back to find a time to view the property that suits you.

Once you’ve found a property you want to buy, it’s time to make an offer. A bit of negotiation is to be expected, however don't offer so little that you end up in a lengthy negotiation process, as you might lose the property altogether if someone else makes a higher bid.

If other offers have been made on a property we aren't legally able to tell you what they are, but we may indicate if they were close to the asking price.

If you have a property to sell, why not see how we can help you.

Or if you’re considering letting your property, we can take the stress out of managing your rental, and our award winning lettings team offer a service that can be tailored to your needs.

Combined with nearly 170 years of experience and one of the highest customer satisfaction scores in the industry, Carter Jonas is the perfect property partner.

Why not book a free, no obligation valuation of your property and find out how Carter Jonas can help you make your next move.

Key property details
Property attributes
Detached
Era
Modern
Parking available
Garage
Additional attributes
Garden
Locality
Village
Tenure
Freehold
Energy efficiency rating
C
Lease expires
01 0001
Total sq ft
2,523 (234.4 Sq M) approx.
Carter Jonas reference
YOR250342

Suggested properties

Here are a few properties you might like, but within 2 extra miles of your current search

Asking price £450,000
3 bedroom house
Asking price £875,000
4 bedroom house
Offers over £850,000
4 bedroom house
Offers over £400,000
2 bedroom flat
Offers over £1,500,000
5 bedroom house
Asking price £290,000
1 bedroom flat
Asking price £925,000
7 bedroom house
Asking price £775,000
6 bedroom house
Asking price £325,000
2 bedroom flat
Asking price £375,000
2 bedroom flat
Asking price £425,000
2 bedroom flat
Offers over £850,000
7 bedroom house
Thinking of selling?

Find out what your property is worth