Winslade Road, Winchester SO22

Winslade Road, Winchester SO22

3 Bedroom | Freehold

Asking price £475,000
Winchester 1.3 miles
Shawford 4.1 miles
Dean Lane Corner (Stop Ref B) 0.6 miles

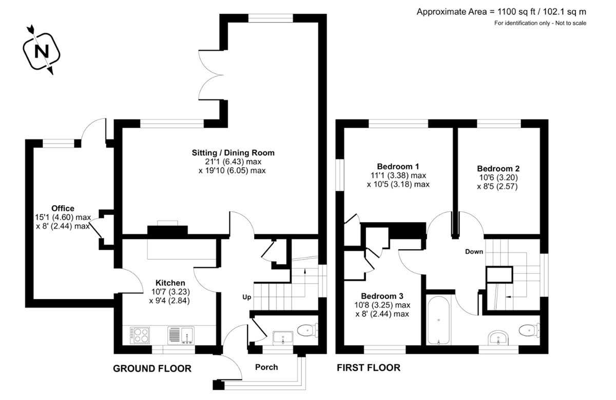
Nestled in the sought-after residential area of Winslade Road in Winchester, this delightful three-bedroom detached home offers a perfect blend of comfort, space, and practicality. Set in a residential area with easy access to the city centre.

Upon entering, you are welcomed into a thoughtfully designed ground floor that flows effortlessly from room to room. The heart of the home is the open-plan kitchen, which provides a modern and functional space for cooking and entertaining. Adjacent to the kitchen is a spacious L-shaped lounge and dining area offering a versatile layout for both relaxing and hosting guests. A separate office room provides a quiet retreat for working from home or studying, while the former garage has been cleverly converted into a utility space, adding valuable storage and practicality to the home.

Upstairs, the property features three generously sized bedrooms, each offering a comfortable and peaceful environment. The principal bedroom is well-proportioned, while the second and third bedrooms are ideal for children, guests, or additional workspace. A well-appointed family bathroom completes the first-floor accommodation.

Outside
The rear garden features a patio area perfect for outdoor dining and an elevated grass lawn ideal for play or relaxation. The front of the property benefits from off-road parking for two vehicles, ensuring convenience for residents and visitors alike.

Location
Steeped in history, Winchester is England’s ancient capital city and former seat of King Alfred the Great. This bustling city seamlessly combines grand old architecture with 21st Century art, sculpture and world class attractions which includes the magnificent cathedral. Winchester is perfectly located for the commuter, family or professional, within a 1 hour commute of London Waterloo by train. Road links are equally conveniently accessible with the M3, A34, A303 and M27 close to hand giving ease of access to The South Coast, The New Forest, Wiltshire and Dorset. Nearby schools include Western CE Primary, The Westgate School and Peter Symonds College.

Additional Information
Tenure: Freehold
Services: Mains electricty, water, drainage and gas central heating
Broadband: Fibre to the Cabinet (FTTC). For internet and mobile services check Ofcom's website
Local Authority: Winchester City Council
Council Tax: Band E
Viewings: Strictly by appointment with Carter Jonas, 01962 842742

The next steps...

Before making an offer on a property you will want to consider your financial situation, your income and outgoings.

Will you finance the purchase of your next property from the sale of an existing property which can put you in a chain, arrange a mortgage through your bank or buy the property outright.

To help you finance your next property purchase, we have a long established relationship with an independent mortgage broker who can discuss your situation with you.

Remember that having a 'mortgage decision in principle' can make you a more attractive buyer when you make an offer on a property. Contact our mortgage advisers for free, no obligation and impartial advice.

Some advantages of a broker are:

  • They do all the legwork for you, working on your behalf with the lender
  • They compare wholesale mortgage rates from a large number of banks and lenders all at once
  • Their wholesale interest rates can be lower than retail (bank branch) interest rates
  • They offer more loan options because they work with numerous banks and lenders
  • They can finance tricky deals because of their knowledge and various lending partners
  • They are typically easier to get in contact with, and are less bureaucratic.

However advantages of working with your bank are:

  • You may be able to build off an existing relationship (and gain discounts if you have a checking or savings account)
  • You may already know the banker who will handle your mortgage
  • Banks may be more accountable than a smaller shop
  • They may offer lower interest rates in some cases
  • Their ability to add mortgage to existing banking profile and make automatic payments from linked account.

When you see a property you are interested in on our website, call us 24/7 to arrange a viewing. Or if you prefer, get in touch via our website and we will call you back to find a time to view the property that suits you.

Once you’ve found a property you want to buy, it’s time to make an offer. A bit of negotiation is to be expected, however don't offer so little that you end up in a lengthy negotiation process, as you might lose the property altogether if someone else makes a higher bid.

If other offers have been made on a property we aren't legally able to tell you what they are, but we may indicate if they were close to the asking price.

If you have a property to sell, why not see how we can help you.

Or if you’re considering letting your property, we can take the stress out of managing your rental, and our award winning lettings team offer a service that can be tailored to your needs.

Combined with nearly 170 years of experience and one of the highest customer satisfaction scores in the industry, Carter Jonas is the perfect property partner.

Why not book a free, no obligation valuation of your property and find out how Carter Jonas can help you make your next move.

Key property details
Property attributes
Detached
Parking available
Off Street Parking
Tenure
Freehold
Energy efficiency rating
D
Total sq ft
1,100 (102.2 Sq M) approx.
Carter Jonas reference
WIN250063

Suggested properties

Here are a few properties you might like, but within 2 extra miles of your current search

Guide price £300,000
1 bedroom house
Asking price £950,000
4 bedroom house
Asking price £350,000
3 bedroom house
Guide price £225,000
1 bedroom flat
Asking price £260,000
1 bedroom flat
Thinking of selling?

Find out what your property is worth