Land At Stanton On The Wolds, Browns Lane NG12

Land At Stanton On The Wolds, Browns Lane NG12

Freehold

Price on Application
South Wolds School 1 miles
The Square 1.3 miles
The Griffin 2 miles

Approximately 1 acre (0.4 hectares) of land with development potential (subject to obtaining the necessary planning consents) for sale by private treaty.

We have been instructed by the Vendor to call for best and final bids for the land at Stanton on the Wolds. We require bids to be submitted to us in writing (either by post or email) by 12 noon on Wednesday 20 February 2019. Please contact us to obtain a copy of the letter detailing the best offer process that we have been instructed to undertake.

Please contact us on 01604 608210 in advance of the deadline if you require any further information.


Approximately 1 acre (0.4 hectares) of land with development potential (subject to obtaining the necessary planning consents) for sale by private treaty.

SITUATION

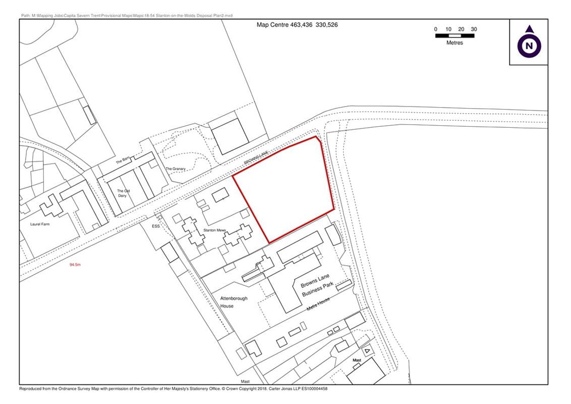
The land is situated on the eastern edge of the village of Stanton on the Wolds in south Nottinghamshire. The land sits immediately adjacent to both residential properties and commercial units. The nearest postcode to the land is NG12 5BL and the land benefits from direct access from Browns Lane.

DESCRIPTION

The plot extends to 1 acre (0.4 hectares) or thereabouts of garden land with development potential (subject to obtaining the necessary planning consents), as shown edged red on the attached plan. The land is currently a grass paddock and features several mature trees and an attractive outlook.

SERVICES

As far as we are aware, the land does not benefit from any services.

TENURE

The land is subject to a short term garden licence agreement however vacant possession will be available upon completion.

DESIGNATIONS

The land is not subject to any Environmental Stewardship schemes at present.

BOUNDARIES

The land benefits from a combination of hedge and fence boundaries.

EASEMENTS AND RIGHTS OF WAY

The land is sold subject to all existing wayleaves, rights of way, easements and rights of drainage whether specifically referred to in these particulars or not.

MINERALS, TIMBER & SPORTING RIGHTS

Timber and sporting rights are included in the sale insofar as they are owned by the Vendor.

OVERAGE AGREEMENT

The vendor intends to sell the land subject to an overage agreement. The proposed overage agreement will entitle the vendor to 50% of any uplift in value for a period of 50 years from any development of the land, excluding development for agricultural or equestrian use. Please contact the selling agent for more information.

GUIDE PRICE

Price on Application – please contact the Selling Agent for details.

VIEWING

The land can be viewed during reasonable daylight hours by persons with a copy of these particulars to hand, having first contacted the selling agent.

VAT

All prices quoted are exclusive of, but may be subject to Value Added Tax.

FURTHER INFORMATION

If you require any further information, please contact the selling agent Ashling Toolan on 01604 608 210 or ashling.toolan@carterjonas.co.uk

SITE PLAN

Not to scale. For identification purposes only.

The next steps...

Before making an offer on a property you will want to consider your financial situation, your income and outgoings.

Will you finance the purchase of your next property from the sale of an existing property which can put you in a chain, arrange a mortgage through your bank or buy the property outright.

To help you finance your next property purchase, we have a long established relationship with an independent mortgage broker who can discuss your situation with you.

Remember that having a 'mortgage decision in principle' can make you a more attractive buyer when you make an offer on a property. Contact our mortgage advisers for free, no obligation and impartial advice.

Some advantages of a broker are:

  • They do all the legwork for you, working on your behalf with the lender
  • They compare wholesale mortgage rates from a large number of banks and lenders all at once
  • Their wholesale interest rates can be lower than retail (bank branch) interest rates
  • They offer more loan options because they work with numerous banks and lenders
  • They can finance tricky deals because of their knowledge and various lending partners
  • They are typically easier to get in contact with, and are less bureaucratic.

However advantages of working with your bank are:

  • You may be able to build off an existing relationship (and gain discounts if you have a checking or savings account)
  • You may already know the banker who will handle your mortgage
  • Banks may be more accountable than a smaller shop
  • They may offer lower interest rates in some cases
  • Their ability to add mortgage to existing banking profile and make automatic payments from linked account.

When you see a property you are interested in on our website, call us 24/7 to arrange a viewing. Or if you prefer, get in touch via our website and we will call you back to find a time to view the property that suits you.

Once you’ve found a property you want to buy, it’s time to make an offer. A bit of negotiation is to be expected, however don't offer so little that you end up in a lengthy negotiation process, as you might lose the property altogether if someone else makes a higher bid.

If other offers have been made on a property we aren't legally able to tell you what they are, but we may indicate if they were close to the asking price.

If you have a property to sell, why not see how we can help you.

Or if you’re considering letting your property, we can take the stress out of managing your rental, and our award winning lettings team offer a service that can be tailored to your needs.

Combined with nearly 170 years of experience and one of the highest customer satisfaction scores in the industry, Carter Jonas is the perfect property partner.

Why not book a free, no obligation valuation of your property and find out how Carter Jonas can help you make your next move.

Key property details
Tenure
Freehold
Total sq ft
43,560 (4,046.9 Sq M) approx.
Carter Jonas reference
NTR190001
Thinking of selling?

Find out what your property is worth