Bourton, Much Wenlock TF13
        4 Bedroom | 3 Baths | Pets Allowed
        
                        £1,900
            per month
            £438 per week
        
        
        The Carriage House is a beautifully presented four-bedroom newly converted barn conversion set within the village of Bourton, offering spacious accommodation throughout.
        The Carriage House is a beautifully presented four-bedroom barn conversion set within the village of Bourton, offering spacious accommodation throughout.
The property is situated off a quiet country lane in the heart of the Shropshire countryside, benefitting from views across the Corvedale, and ample parking for two cars.
Sympathetically converted to a high standard, the property boasts a newly fitted kitchen with an integrated oven and hob, polished stone flooring, and exposed original timber beams throughout. 
Located in South Shropshire on the northern edge of the Corvedale, the property lies two miles to the south-west of the historic market town of Much Wenlock which provides a number of local restaurants, shops and services. Larger towns within commuting distance are: Bridgnorth, 9 miles; Telford, 14 miles; Shrewsbury, 16 miles; Ludlow, 18 miles; Birmingham, 45 miles.
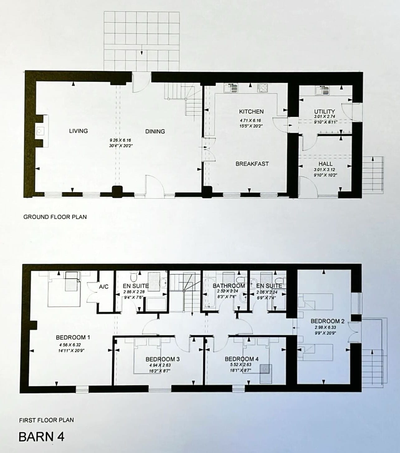
The accommodation comprises of:
Ground Floor:
Entrance Hall – 3.01 x 3.12
With stone flooring and the front door.
Utility – 3.01 x 2.74
With stone flooring, a newly fitted utility area with space for a washing machine and tumble dryer, and a door that leads to the rear of the property.
Kitchen – 4.71 x 6.16
With stone flooring, a fitted kitchen with an integrated oven and hob, space for a fridge/freezer and a dishwasher.
Living Room – 9.26 x 6.16
With oak flooring, a log burner, a door to the front of the property and a back door leading you to the back garden.
First Floor:
Bedroom One – 4.56 x 6.32
A spacious bedroom with a carpet floor, exposed timber beam doorway and an en-suite.
En-Suite – 2.86 x 2.28
A modern en-suite with a shower, WC and sink.
Bedroom Two – 2.98 x 6.33
A twin room with a carpet floor which can be accessed separately via original brick steps to the side of the property. Bedroom two also benefits from an en-suite.
En-Suite – 2.06 x 2.24
With oak-effect vinyl floor, a shower, sink and WC. 
Bedroom Three – 4.94 x 2.63
A double bedroom, with a carpet floor and exposed original timber beams.
Bedroom Four – 5.52 x 2.63
A double bedroom, with a carpet floor and exposed original timber beams.
Bathroom – 2.52 x 2.24
A spacious bathroom with oak-effect vinyl floor, a bath, sink and WC. 
Externally, at the back of the property, there is a slabbed patio and a lawned area which will be fenced off, accessible from the living room or from the side of the property.
Services
- Air Source Heat Pump
- Mains Water
- Mains Electricity
- Private Sewage (supplied by Private Sewage Treatment Plant – costs are included in the rent)
Rent: £1,900
Deposit: £2,190
Pets will be considered.
EPC Pending.
Available to let from the middle of October.
Viewings strictly by appointment only. Please contact Carter Jonas Shrewsbury for more information.
    
The next steps...
    
        
            1
            
                Establish funds
                
                    How will you fund the purchase?
                
             
        
            
                Before making an offer on a property you will want to consider your financial situation, your income and outgoings.
Will you finance the purchase of your next property from the sale of an existing property which can put you in a chain, arrange a mortgage through your bank or buy the property outright.
To help you finance your next property purchase, we have a long established relationship with an independent mortgage broker who can discuss your situation with you.
Remember that having a 'mortgage decision in principle' can make you a more attractive buyer when you make an offer on a property. Contact our mortgage advisers for free, no obligation and impartial advice.
Some advantages of a broker are:
    - They do all the legwork for you, working on your behalf with the lender
- They compare wholesale mortgage rates from a large number of banks and lenders all at once
- Their wholesale interest rates can be lower than retail (bank branch) interest rates
- They offer more loan options because they work with numerous banks and lenders
- They can finance tricky deals because of their knowledge and various lending partners
- They are typically easier to get in contact with, and are less bureaucratic.
However advantages of working with your bank are:
    - You may be able to build off an existing relationship (and gain discounts if you have a checking or savings account)
- You may already know the banker who will handle your mortgage
- Banks may be more accountable than a smaller shop
- They may offer lower interest rates in some cases
- Their ability to add mortgage to existing banking profile and make automatic payments from linked account.
 
         
    
    
        
            2
            
                Making an offer 
                
                    with Carter Jonas.
                
             
        
            
                When you see a property you are interested in on our website, call us 24/7 to arrange a viewing. Or if you prefer, get in touch via our website and we will call you back to find a time to view the property that suits you.
Once you’ve found a property you want to buy, it’s time to make an offer. A bit of negotiation is to be expected, however don't offer so little that you end up in a lengthy negotiation process, as you might lose the property altogether if someone else makes a higher bid.
If other offers have been made on a property we aren't legally able to tell you what they are, but we may indicate if they were close to the asking price.
             
         
    
    
        
            3
            
                Need to sell a property
                
                    or thinking of letting?
                
             
        
            
                If you have a property to sell, why not see how we can help you.
Or if you’re considering letting your property, we can take the stress out of managing your rental, and our award winning lettings team offer a service that can be tailored to your needs.
Combined with nearly 170 years of experience and one of the highest customer satisfaction scores in the industry, Carter Jonas is the perfect property partner.
Why not book a free, no obligation valuation of your property and find out how Carter Jonas can help you make your next move.