Green End, Great Stukeley PE28

Green End, Great Stukeley PE28

Freehold

Asking price £275,000
Huntingdon 1.8 miles
St Margarets Way 1 miles
Tesco 1 miles

DEVELOPMENT OPPORTUNITY!
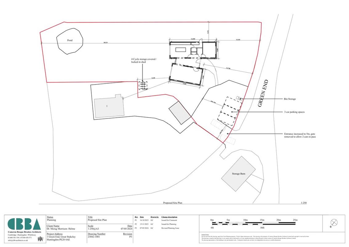
A fantastic opportunity to acquire a PLOT OF LAND with full planning permission for a two storey, four bedroom family home, circa 2600sqft, located in the popular village of Great Stukeley just 2 miles north-west of Huntingdon.

A fantastic opportunity to acquire a plot of land with planning permission for a two storey, four bedroom family home circa 2605sqft, located in the popular village of Great Stukeley.

Situated 2 miles north-west of Huntingdon and 8 miles north-west of St Ives, the village of Great Stukeley offers a mixture of both period homes and more recent developments.

Saint Bartholomew Church has been established in the village for around 800 years and remains a focal point for many community activities in addition to the village hall.

Stukeley Meadows Primary School and Alconbury CofE Primary School are located locally as well as St Peter's Secondary School. Several nursery providers are located close by.

Leisure and retail opportunities are well served in Huntingdon town with health clinics, restaurants, sporting clubs and employment opportunities.

Great Stukeley is conveniently located for road links via the A1 (M) (North/South) and A14 East/West with Huntingdon Rail Station approx. 2.5 miles (Huntingdon - London St Pancras). Huntingdon's main bus station provides access into Cambridge City Centre.

Planning
Planning was granted on 17th October 2023 by Huntingdon District Council under reference number 23/01973/FUL

Services
Services are available, however purchasers are responsible for undertaking their own due diligence.

Wayleaves, Easements & Rights of Way
Access to the land will be off Green End, with the neighbouring property exercising right-of-way for access to their property.

Method of Sale
The Property is for sale via Private Treaty.

Viewings
Strictly by appointment only with agents. To book your appointment, please contact us on 01223 403330.

The next steps...

Before making an offer on a property you will want to consider your financial situation, your income and outgoings.

Will you finance the purchase of your next property from the sale of an existing property which can put you in a chain, arrange a mortgage through your bank or buy the property outright.

To help you finance your next property purchase, we have a long established relationship with an independent mortgage broker who can discuss your situation with you.

Remember that having a 'mortgage decision in principle' can make you a more attractive buyer when you make an offer on a property. Contact our mortgage advisers for free, no obligation and impartial advice.

Some advantages of a broker are:

  • They do all the legwork for you, working on your behalf with the lender
  • They compare wholesale mortgage rates from a large number of banks and lenders all at once
  • Their wholesale interest rates can be lower than retail (bank branch) interest rates
  • They offer more loan options because they work with numerous banks and lenders
  • They can finance tricky deals because of their knowledge and various lending partners
  • They are typically easier to get in contact with, and are less bureaucratic.

However advantages of working with your bank are:

  • You may be able to build off an existing relationship (and gain discounts if you have a checking or savings account)
  • You may already know the banker who will handle your mortgage
  • Banks may be more accountable than a smaller shop
  • They may offer lower interest rates in some cases
  • Their ability to add mortgage to existing banking profile and make automatic payments from linked account.

When you see a property you are interested in on our website, call us 24/7 to arrange a viewing. Or if you prefer, get in touch via our website and we will call you back to find a time to view the property that suits you.

Once you’ve found a property you want to buy, it’s time to make an offer. A bit of negotiation is to be expected, however don't offer so little that you end up in a lengthy negotiation process, as you might lose the property altogether if someone else makes a higher bid.

If other offers have been made on a property we aren't legally able to tell you what they are, but we may indicate if they were close to the asking price.

If you have a property to sell, why not see how we can help you.

Or if you’re considering letting your property, we can take the stress out of managing your rental, and our award winning lettings team offer a service that can be tailored to your needs.

Combined with nearly 170 years of experience and one of the highest customer satisfaction scores in the industry, Carter Jonas is the perfect property partner.

Why not book a free, no obligation valuation of your property and find out how Carter Jonas can help you make your next move.

Key property details
Locality
Village
Tenure
Freehold
Carter Jonas reference
CNH250031

Suggested properties

Here are a few properties you might like, but within 2 extra miles of your current search

Guide price £600,000
3 bedroom house
Guide price £450,000
2 bedroom flat
Asking price £1,600,000
4 bedroom house
Guide price £400,000
3 bedroom flat
Guide price £575,000
3 bedroom flat
Guide price £425,000
2 bedroom flat
Guide price £1,750,000
5 bedroom house
Offers over £1,850,000
5 bedroom house
Guide price £575,000
3 bedroom flat
Guide price £410,000
2 bedroom flat
Offers in excess of £925,000
4 bedroom house
Guide price £325,000
1 bedroom flat
Thinking of selling?

Find out what your property is worth