Approval for 574 homes and local centre at Knights Hill King’s Lynn, Norfolk
Knights Hill masterplan
Client
Barratt and David Wilson
Sector
Planning & Development
Location
King’s Lynn, Norfolk
How we helped
Planning consultancy Development consultancy
@
Get in touch
@
John Mason
Associate, Planning & Development
01223 326552 Email me About John
PREV:
NEXT:
I am a chartered Associate with Carter Jonas based in their Cambridge office. I work with clients across East Anglia on preparing and managing planning applications; providing planning advice in respect of a range of sites, types of development and uses; and negotiating with external consultants and local authorities on behalf of clients. I have an academic background in Geography, Urban Studies and Planning, with masters degrees from the University of Cambridge and the University of Vienna. I am a member of the Young RTPI Committee and the RTPI Regional Management Board for the East of England.

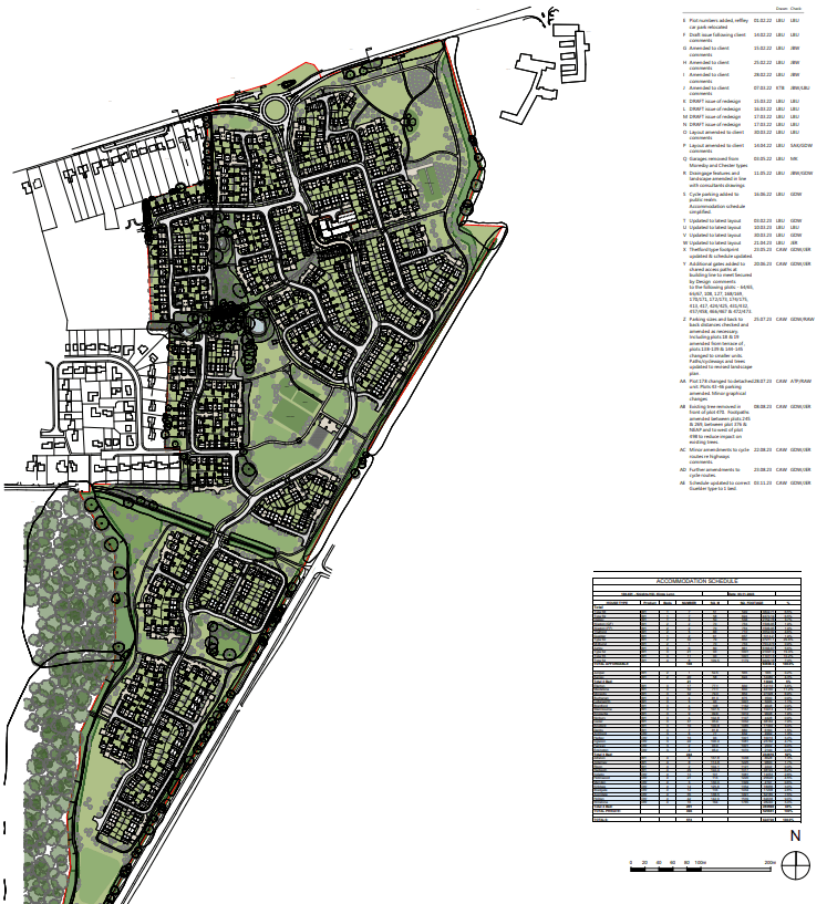
The Carter Jonas planning team were delighted to achieve consent for reserved matters for 574dwellings at Knights Hill, King’s Lynn, in November 2023. 

It is the culmination of years of involvement with the Knights Hill site. The planning team were successful initially in allocating the 35hectare site for residential development within King’s Lynn and West Norfolk’s local plan. The team then managed and submitted an outline application for up to 600dwellings which was approved at an inquiry in 2020, despite significant local opposition. 

Following that success, Carter Jonas were retained by housebuilder Barratt and David Wilson Homes to manage and submit the reserved matters for the site, securing the details of the homes, landscaping and open space. Carter Jonas worked together with the client and project team to respond to a significant amount of feedback from consultees, and managed to address strong concerns from the local Parish Councils to eventually secure their support. 

Following positive comments from officers, consultees and the Parishes, the scheme was approved unanimously by PlanningCommittee. 

The approved scheme will deliver a well-considered high-quality development of 574 homes across eight different character areas, with high quality pedestrian and cycle links, a 50m buffer to adjacent Ancient Woodland, extensive ecological zones and over 30% of the site retained as public open space(including woodland, allotments, play areas, a football pitch, and wildflower meadows). A local centre will come forward as a future phase. 

The Development team, based in Cambridge managed the exchange and will also manage the completion. 

A spokesperson for Barratt and David Wilson Homes Cambridgeshire, said: “We would like to thank Carter Jonas’ planning team for their support in managing the application through to determination. We were delighted to achieve a unanimous recommendation for approval and are very much looking forward to delivering a range of homes to the area, as well as supporting the local economy.

Knights hill

Related Case Studies
Specialist Orthopaedics
Planning & development

Specialist Orthopaedics

The Carter Jonas planning & development north team obtained planning consent for the change of use o...

View case study
The Aylesbury Estate Regeneration Project
Planning & development

The Aylesbury Estate Regeneration Project

The Aylesbury Estate was built in the 1960’s and 1970’s and originally contained over 2,500 resident...

View case study
Approval secured under permitted development for barn conversion
Planning & development

Approval secured under permitted development for barn conversion

Class Q approval secured for conversion of a modern agricultural barn to five-bedroom dwelling with ...

View case study
Islamabad Education Campus
Planning & development

Islamabad Education Campus

The Islamabad site is 10.3 hectare in size and has been occupied by the Ahmadiyya Muslim Association...

View case study
Russell Group secure Planning Permission
Planning & development

Russell Group secure Planning Permission

Russell Group secure Planning Permission for 1.45m sq ft commercial scheme and 1000 new homes

View case study
Development partner secured, Leeds
Planning & development

Development partner secured, Leeds

Our development professionals were instructed to identify a suitable development partner to take on ...

View case study
Discovery Special Academy
Planning & development

Discovery Special Academy

Our planning specialists secured temporary planning permission for a two year period for modular acc...

View case study
Development partner secured, Manchester
Planning & development

Development partner secured, Manchester

Acting on behalf of a private landowner who owns around 1,000 acres of land within Rochdale Bury, ou...

View case study
Land at Towton Avenue
Planning & development

Land at Towton Avenue

Carter Jonas’ development professionals have sold a 1.65-acre development site at Towton Avenue, Yor...

View case study
Wildstone Portfolio
Planning & development

Wildstone Portfolio

The London Planning Team at Carter Jonas were appointed to assist in the management of a portfolio o...

View case study
Environment Statement for former brickworks
Planning & development

Environment Statement for former brickworks

The wider project involved the demolition of existing redundant stores, change of use of a builder’s...

View case study
Heathside
Planning & development

Heathside

Acting on behalf of the Department for Education and the ElmWey Learning Trust, we secured planning ...

View case study
Change of use to secondary school
Planning & development

Change of use to secondary school

Our northern planning specialists secured approval for the temporary change of use of offices at Rus...

View case study
Aperture Works
Planning & development

Aperture Works

Carter Jonas has successfully secured reserved matters and detailed planning permission for Harrow V...

View case study
Surplus Land Pilot Study
Planning & development

Surplus Land Pilot Study

We are currently advising Homes England and Locat-Ed, the Department for Education’s property compan...

View case study
Nestles Avenue
Planning & development

Nestles Avenue

Carter Jonas was involved in advising Buccleuch Property on a mixed-use redevelopment scheme on Nest...

View case study
Sir John Moore Barracks
Planning & development

Sir John Moore Barracks

Sir John Moore Barracks is the home of the Army Training Regiment and dates from 1986, but the site ...

View case study
Viability of a proposed scheme
Planning & development

Viability of a proposed scheme

We advised the London Borough of Hammersmith & Fulham on the viability of a proposed residential sch...

View case study
Development land in Harrogate
Planning & development

Development land in Harrogate

Carter Jonas’ development professionals have sold a 5.17-acre development site at Whinney Lane in Ha...

View case study
New road triangle, Feltham – planning success
Planning & development

New road triangle, Feltham – planning success

Carter Jonas have recently secured planning permission for the redevelopment of the land known as Ne...

View case study
Balham Bowls Club
Planning & development

Balham Bowls Club

The Carter Jonas London planning team have secured planning permission for 12 new town houses and 16...

View case study
Mill Lane, Normanton
Planning & development

Mill Lane, Normanton

On behalf of the landowners, our planning professionals based in the north of England secured outlin...

View case study
Cleeve Park
Planning & development

Cleeve Park

Working with the London Borough of Bexley (LBB) and the Kemnal Academies Trust, we secured planning ...

View case study
Land at Gough Street
Planning & development

Land at Gough Street

Our Planning and Development Team secured detailed planning permission for 540 units of purpose-buil...

View case study
County Hall - Heritage and Sustainability
Planning & development

County Hall - Heritage and Sustainability

Carter Jonas were appointed by Sustainable Ventures to provide planning advice for the refurbishment...

View case study
Beaverbrook Golf Course
Planning & development

Beaverbrook Golf Course

The delivery of this exemplary project was due to many years of hard work by a committed and enthusi...

View case study
Multi-development opportunities in Gillingham
Planning & development

Multi-development opportunities in Gillingham

Carter Jonas acted for a private landowner in respect of a strategic development scheme comprising a...

View case study
Hotel and Apart-Hotel
Planning & development

Hotel and Apart-Hotel

Carter Jonas has achieved planning permission for a new hotel and apart-hotel to the north of Cambri...

View case study
North Abingdon, Oxfordshire
Planning & development

North Abingdon, Oxfordshire

Acting for a charity, Carter Jonas identified the potential for development of the client’s Greenbel...

View case study
Brick By Brick Small Sites Portfolio
Planning & development

Brick By Brick Small Sites Portfolio

Carter Jonas is advising a Croydon Council backed development company on a 70-site residential portf...

View case study
Barwood Capital, Richmond
Planning & development

Barwood Capital, Richmond

Plans for a newly refurbished, Grade A office building in Richmond have been given the green light, ...

View case study
Strategic development scheme in Wantage
Planning & development

Strategic development scheme in Wantage

Carter Jonas brought two farming families together at Wantage to promote a strategic development sch...

View case study
Meadowlands, Winchester
Planning & development

Meadowlands, Winchester

Acting on behalf of the landowner, the Carter Jonas Development team in Winchester advised on the sa...

View case study
Planning achieved for sustainable redevelopment of British library’s Boston spa site
Planning & development

Planning achieved for sustainable redevelopment of British library’s Boston spa site

Supported by Carter Jonas, British Library’s sustainable redevelopment of its Boston Spa site has be...

View case study
Land development opportunities from Greenbelt to the north of Abingdon
Planning & development

Land development opportunities from Greenbelt to the north of Abingdon

Acting for a charity client, Carter Jonas identified the potential for development of Greenbelt land...

View case study
BCC Land and Property Portfolio
Planning & development

BCC Land and Property Portfolio

Carter Jonas advises Buckinghamshire County Council on its land and property portfolio under a 5-yea...

View case study
Student Accommodation: Iffley Road
Planning & development

Student Accommodation: Iffley Road

The Oxford Planning Team at Carter Jonas have worked closely with Wadham College and the wider proje...

View case study
Eton House
Planning & development

Eton House

The refurbishment and extension of an office building on Paradise Road in the London Borough of Rich...

View case study
Ecoworld’s sustainable regeneration of Woking town centre
Planning & development

Ecoworld’s sustainable regeneration of Woking town centre

The regeneration scheme will create over 900 new homes, ground floor units for a variety of business...

View case study
Gunnersbury Triangle
Planning & development

Gunnersbury Triangle

We recently secured planning permission, on behalf of Lampton Development 360, a joint venture partn...

View case study
Kingston Riding Centre
Planning & development

Kingston Riding Centre

On behalf of the residential developer London Square Developments, our Carter Jonas London planning ...

View case study
Carter Jonas secures planning permission for the expansion of the Oxfordshire Advanced Skills facility at Culham Science Centre
Planning & development

Carter Jonas secures planning permission for the expansion of the Oxfordshire Advanced Skills facility at Culham Science Centre

Carter Jonas was appointed by the UK Atomic Energy Authority (UKAEA) to prepare and submit a plannin...

View case study
GAP Depot at former Bodmin Moor Radio Station
Planning & development

GAP Depot at former Bodmin Moor Radio Station

Carter Jonas have obtained planning permission for the change of use of the historic Bodmin Moor Rad...

View case study
North Brockworth, Gloucestershire
Planning & development

North Brockworth, Gloucestershire

Carter Jonas acquired around 90 acres of agricultural land in the Green Belt near Gloucester for an ...

View case study
Goldsworth Road, Woking Borough Council
Planning & development

Goldsworth Road, Woking Borough Council

Carter Jonas is advising EcoWorld London on the redevelopment of the 1.15 ha site, comprising eight ...

View case study
Harrods Headquarters
Planning & development

Harrods Headquarters

Carter Jonas’ London planning team has obtained planning permission for a large-scale office extensi...

View case study
Westminster Small Sites
Planning & development

Westminster Small Sites

Carter Jonas advised Westminster City Council on the redevelopment of two council-owned garage sites...

View case study
Penny Pot Lane Harrogate
Planning & development

Penny Pot Lane Harrogate

Carter Jonas on behalf of Mealia Partnership and Cushman & Wakefield on behalf of Woodard Corporatio...

View case study
Whitehouse Farm Harrogate
Planning & development

Whitehouse Farm Harrogate

Carter Jonas’s Planning North team successfully secures Full Planning Permission for residential dev...

View case study
Albert Road Residential Development
Planning & development

Albert Road Residential Development

Carter Jonas’s Leeds office was instructed by the landowner to identify a development partner to bri...

View case study
Carter Jonas acquired 90 acres of land in Greenbelt
Planning & development

Carter Jonas acquired 90 acres of land in Greenbelt

Carter Jonas acquired around 90 acres of agricultural land in the Green Belt near Gloucester for an ...

View case study
Charlton Riverside
Planning & development

Charlton Riverside

Carter Jonas is advising Hyde Group on the redevelopment of the 4.21 ha site, comprising five parcel...

View case study
Harrow View East
Planning & development

Harrow View East

Carter Jonas has successfully secured reserved matters and detailed planning permission for Harrow V...

View case study
Windmill Farm
Planning & development

Windmill Farm

Carter Jonas’s Northern Planning and Development Team is instructed to promote over 100 acres of lan...

View case study
Carter Jonas achieves planning and listed building consent for Hertford College, Oxford
Planning & development

Carter Jonas achieves planning and listed building consent for Hertford College, Oxford

Carter Jonas has secured planning and listed building consent for an extensive redevelopment for Her...

View case study
Dishforth Road Development
Planning & development

Dishforth Road Development

Carter Jonas's Leeds office were instructed by the landowner to select a Developer or Promoter to ta...

View case study
East Witney Strategic Development Area
Planning & development

East Witney Strategic Development Area

Carter Jonas has successfully secured an allocation for around 450 new homes on land at East Witney....

View case study
Fairfield Homes
Planning & development

Fairfield Homes

Carter Jonas was instructed to provide planning strategy advice and prepare a detailed planning appl...

View case study
School Rebuilding Programme
Planning & development

School Rebuilding Programme

Helping the UK’s Department for Education to build and refurbish schools across London and the South...

View case study
Ladbroke Grove
Planning & development

Ladbroke Grove

Carter Jonas advise the Royal Borough of Kensington and Chelsea (RBKC) on the redevelopment of its r...

View case study
Secured Outline Planning Permission
Planning & development

Secured Outline Planning Permission

On behalf of CEG, the Oxford Planning Team has secured outline planning permission for up to 900 hou...

View case study
Land off Thornbury Road, Eynsham
Planning & development

Land off Thornbury Road, Eynsham

Maximised value for the landowner by securing planning permission for 160 residential units and then...

View case study
Retail Development
Planning & development

Retail Development

Carter Jonas transformed the landmark Daniel Department Store building in Windsor.

View case study
Global Headquarters Cambridge
Planning & development

Global Headquarters Cambridge

Carter Jonas has been appointed by ARM Holdings to act as their sole strategic property adviser in C...

View case study
Culham Science Centre
Planning & development

Culham Science Centre

Culham Science Centre combines world-class publicly funded research into fusion power; commercial te...

View case study
Harwell Campus
Planning & development

Harwell Campus

Harwell Campus is a leading science, innovation, technology and business campus.

View case study
Burringham Wind Turbine Development
Planning & development

Burringham Wind Turbine Development

Ian Fowler & Co, a farming company in North Lincolnshire, appointed Carter Jonas to determine the po...

View case study
Littlemore Park
Planning & development

Littlemore Park

The disposal and development of Littlemore Park was a key part of the client Trust’s wider strategy ...

View case study
The Retreat by Schoen Clinic
Planning & development

The Retreat by Schoen Clinic

Our healthcare specialists submitted a planning application for a £13m new facility to treat mental ...

View case study
West Burton Power Station, Nottinghamshire
Planning & development

West Burton Power Station, Nottinghamshire

The Spherical Tokamak for Energy Production Programme (STEP), a Government-backed initiative, aims t...

View case study
Adult Intensive Care Unit, John Radcliffe Hospital
Planning & development

Adult Intensive Care Unit, John Radcliffe Hospital

Carter Jonas was instructed by the Oxford University Hospitals NHS Foundation Trust to prepare and s...

View case study
New Modular Theatre Building, John Radcliffe Hospital
Planning & development

New Modular Theatre Building, John Radcliffe Hospital

Carter Jonas was instructed in late 2022 to prepare a full planning application for the erection of ...

View case study
Stuntney
Planning & development

Stuntney

Working on behalf of our client, Cole Ambrose Ltd., our Planning & Development team, based in the ea...

View case study
Manor Oak Homes
Planning & development

Manor Oak Homes

Carter Jonas have achieved consent for a residential development of 680 homes including a new neighb...

View case study
Land at Gipsy Lane
Planning & development

Land at Gipsy Lane

The Gipsy Lane site presents an opportunity to provide high quality new homes and supporting facilit...

View case study
24 dwellings and public open space
Planning & development

24 dwellings and public open space

Our professionals secured a resolution to grant outline planning consent for up to 24 dwellings and ...

View case study
Brookfield Riverside
Planning & development

Brookfield Riverside

Outline planning permission for Brookfield Riverside, a major mixed use town centre, retail, leisure...

View case study
Approval for integrated retirement community and affordable housing
Planning & development

Approval for integrated retirement community and affordable housing

Appeal Success for Integrated Retirement Community (IRC) in the Cambridge Green Belt on behalf of Ax...

View case study
Former county council site
Planning & development

Former county council site

On behalf of This Land (the property company owned by Cambridgeshire County Council), our profession...

View case study
The Meadows Community Centre and St Alban's Recreation Ground
Planning & development

The Meadows Community Centre and St Alban's Recreation Ground

Our planning consultants successfully secured a resolution to approve two planning applications whic...

View case study
Land at Hills Avenue and Baldock Way
Planning & development

Land at Hills Avenue and Baldock Way

On behalf of the charity, It Takes a City, Carter Jonas managed and submitted an application for fou...

View case study
Threesixty Developments
Planning & development

Threesixty Developments

Threesixty Developments called on Carter Jonas’s expertise following the refusal of a planning appli...

View case study
Planning Permission secured on appeal for retirement village in the Cambridge Green Belt
Planning & development

Planning Permission secured on appeal for retirement village in the Cambridge Green Belt

Acting on behalf of Axis Land Partnerships Ltd, the Carter Jonas Eastern Planning Team has secured o...

View case study
Waterbeach New Town
Planning & development

Waterbeach New Town

Waterbeach New Town is a proposal for an exemplar new settlement located north of Cambridge on land ...

View case study
Carter Jonas achieves planning consent for Barratt and David Wilson homes in Cambridge
Planning & development

Carter Jonas achieves planning consent for Barratt and David Wilson homes in Cambridge

National property consultancy Carter Jonas has secured planning consent on behalf of Barratt and Dav...

View case study
Buchan Street Local Centre
Planning & development

Buchan Street Local Centre

Our planning consultants successfully secured a resolution to approve a planning application for the...

View case study
West Tey
Planning & development

West Tey

On behalf of L&Q, as well as strategic promoters Cirrus Land and landowner consortium G120, Carter J...

View case study
New Sports Centre, Oundle School
Planning & development

New Sports Centre, Oundle School

Oundle School is the third largest independent co-educational day and boarding school in England. Ca...

View case study
Land at Green Lane West, Rackheath
Planning & development

Land at Green Lane West, Rackheath

Carter Jonas were appointed by Taylor Wimpey Strategic Land to advise on the prospects of securing o...

View case study
Cambridge Growing Life Centre
Planning & development

Cambridge Growing Life Centre

Carter Jonas’s Cambridge Planning Team assisted Granta Park Estates in securing planning permission ...

View case study
Carter Jonas has successfully promoted land at Knights Hill
Planning & development

Carter Jonas has successfully promoted land at Knights Hill

Our Eastern team, based in Cambridge, has successfully promoted land at Knights Hill.

View case study
The Spicers Site, Sawston
Planning & development

The Spicers Site, Sawston

Carter Jonas have obtained approval for a flagship development of 50,000 square metres of Research &...

View case study
ARM Holdings Campus Expansion
Planning & development

ARM Holdings Campus Expansion

Carter Jonas’ Cambridge Planning team helped secure detailed planning permission for 20,677sqm GEA o...

View case study
Hounslow High Street Quarter
Planning & development

Hounslow High Street Quarter

Carter Jonas is advising Barratt London on the redevelopment of a prominent town centre site, north ...

View case study
Mixed-use
Planning & development

Mixed-use

Carter Jonas’ Eastern Region Planning and Development Team secured resolution to grant outline plann...

View case study
London Borough of Hounslow
Planning & development

London Borough of Hounslow

Carter Jonas is appointed to provide planning advice to Lampton Development 360 across their develop...

View case study
South West Milton Keynes
Planning & development

South West Milton Keynes

Carter Jonas has provided planning consultancy services in relation to SWMK since 2012. This has inc...

View case study
Urban Extension - South West Milton Keynes
Planning & development

Urban Extension - South West Milton Keynes

Carter Jonas were instructed to advise on the sustainable Urban Extension of Milton Keynes in Aylesb...

View case study
Chalfont St Peter, Aylesbury Vale
Planning & development

Chalfont St Peter, Aylesbury Vale

Our professionals developed indicative masterplan proposals for land northeast of Chalfont St Peter ...

View case study
Powerleague - Football & Padel Tennis
Planning & development

Powerleague - Football & Padel Tennis

Planning advice and management of national portfolio of sites in respect of small-side artificial gr...

View case study
Jersey Road
Planning & development

Jersey Road

Carter Jonas has been providing planning advice to Brentford Football Club with respect to the train...

View case study
Brentford Community Stadium
Planning & development

Brentford Community Stadium

We have been working with Brentford Football Club and its development partner EcoWorld London for a ...

View case study